Качественные детали и логистика
Оригинальные и аналоговые запчасти с доставкой по России, Казахстану и Беларуси
©2022 PartSell ООО "Система" ИНН 2463123282 ОГРН 1212400004838
Центральный офис: г. Красноярск, Академика Киренского, д.87, пом.4
Телефон: 8 (800) 777-65-74 Email: zakaz@partsell.ru
ARM
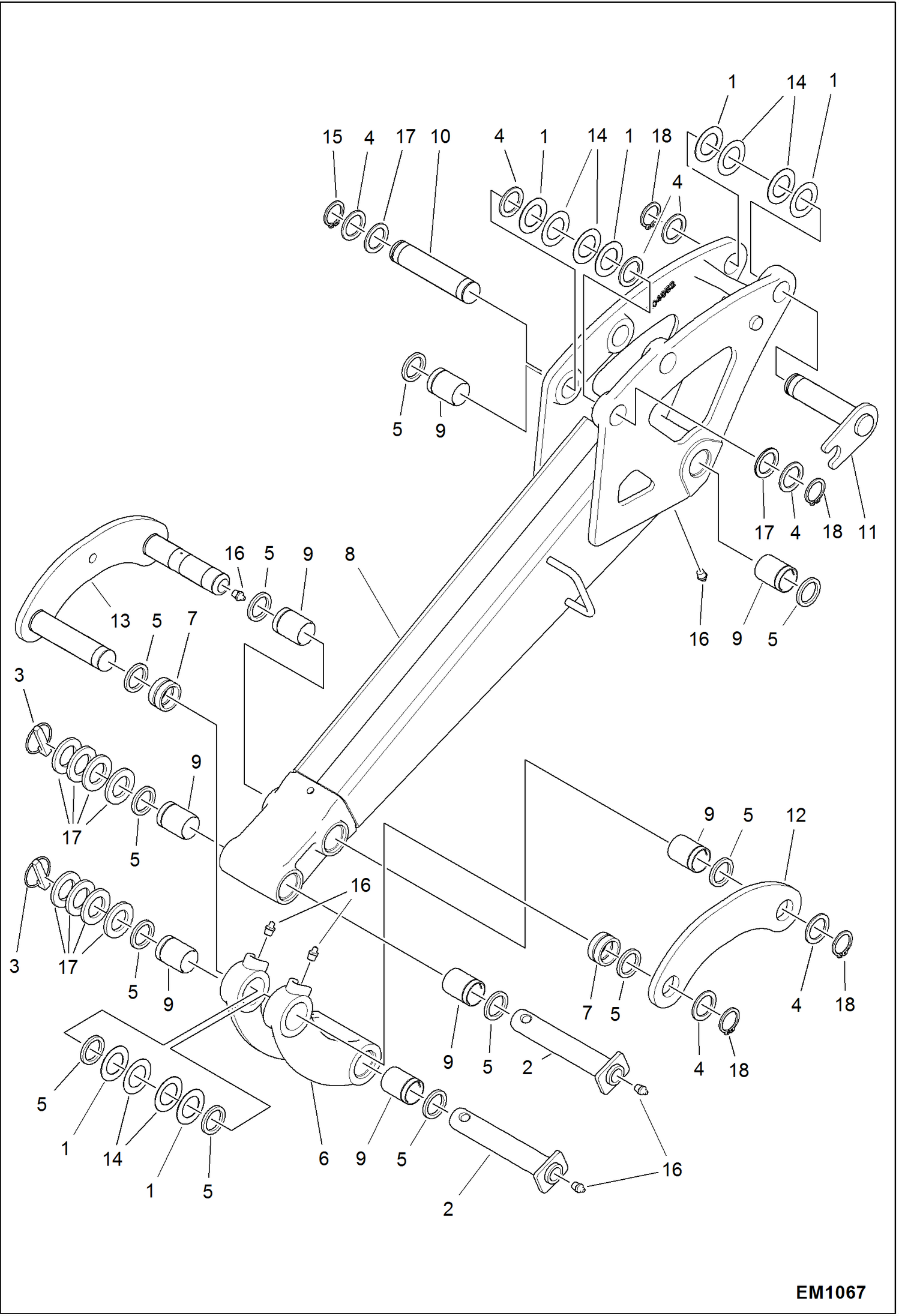
№
Артикул
Название
Примечание
Количество
1
6533856
SHIM
2
6539737
PIN, PIVOT 7.25'' (183 mm) long
3
6560382
PIN, LOCK
4
6589699
WASHER
5
6653534
SEAL
6
6802218
LINK, BUCKET MACHINED
7
6802588
BUSHING, PRESS FIT
8
6818390
9
7100276
BUSHING
10
7103247
PIN
11
7106624
PIN W/A
12
7107768
LINK, GUIDE LOOSE
13
7107769
LINK WA, GUIDE W/A
14
7120208
15
22J19
SNAP RING
16
10H25
FITTING, GREASE 5
17
1EM270
Выбрано товаров: 0