Качественные детали и логистика
Оригинальные и аналоговые запчасти с доставкой по России, Казахстану и Беларуси
©2022 PartSell ООО "Система" ИНН 2463123282 ОГРН 1212400004838
Центральный офис: г. Красноярск, Академика Киренского, д.87, пом.4
Телефон: 8 (800) 777-65-74 Email: zakaz@partsell.ru
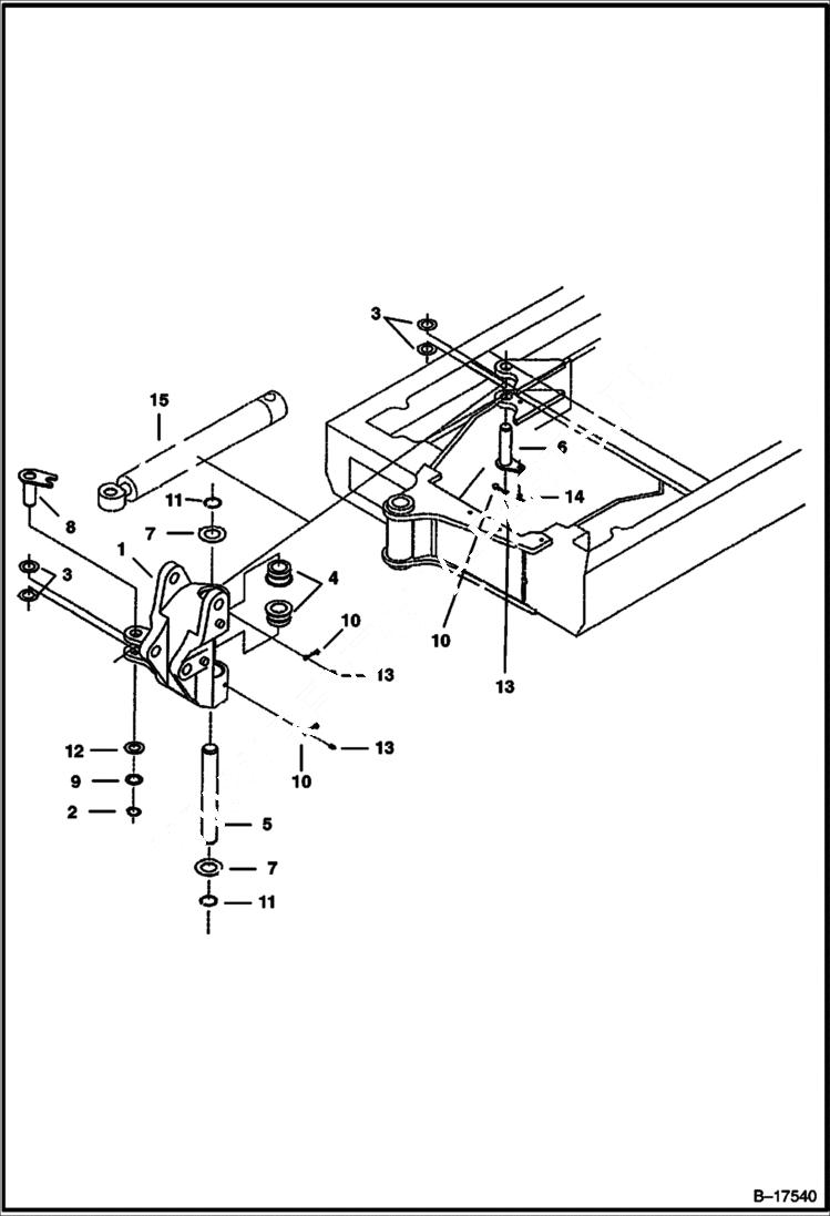
SWING POST
№
Артикул
Название
Примечание
Количество
1
6801603
2
6512132
SNAP RING
3
6533856
SHIM
4
6539898
BUSHING
5
6587377
PIN
6
6801475
PIN Was 6501475 - A
7
6587382
WASHER
8
6589320
9
6589699
10
6652943
COVER grease fitting
11
6661652
RING
12
1EM270
13
10H25
FITTING, GREASE 5
14
29CM1020
BOLT
15
CYLINDER See Illustration SWING CYLINDER/ C3317 - Swing
Выбрано товаров: 0