Качественные детали и логистика
Оригинальные и аналоговые запчасти с доставкой по России, Казахстану и Беларуси
©2022 PartSell ООО "Система" ИНН 2463123282 ОГРН 1212400004838
Центральный офис: г. Красноярск, Академика Киренского, д.87, пом.4
Телефон: 8 (800) 777-65-74 Email: zakaz@partsell.ru
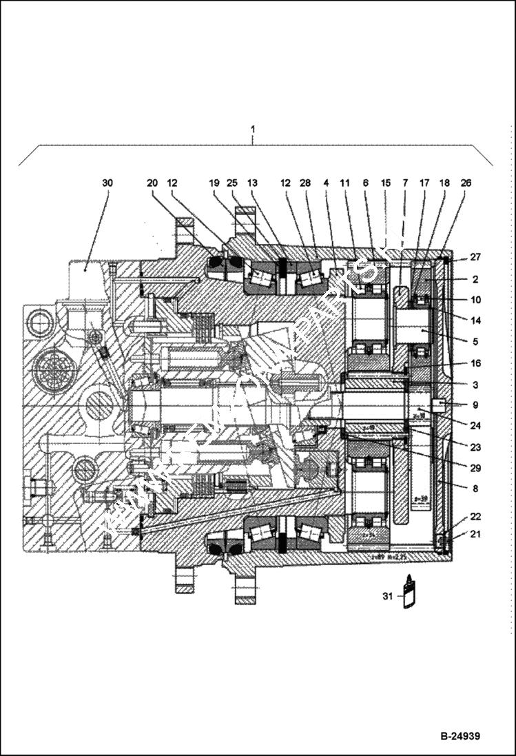
TRAVEL DRIVE
№
Артикул
Название
Примечание
Количество
1
5459660217
MOTOR, DRIVE HYD Was 5999991227 - D
2
5459661101
PLANETARY WHEEL
3
5459661102
SUN WHEEL
4
5459661103
SHAFT NUT
5
5459661104
PIN
6
5459661100
PLANETARY GEAR
7
5459661105
PLANETARY NOSE
8
5459661106
COVER
9
5459661107
CYLINDER ROLL
10
5459661076
BEARING
11
5459661095
12
5459661081
TAP.ROLLER BEARING
13
5459661114
RING,INTERMEDIATE
14
1455622927
CIRCLIP
15
1455622233
16
1455622349
17
1309412824
SHIM support disk
18
1309412119
ADJ WASHER
19
5459661115
INTERMEDIATE RING
20
5459661093
FLOATING SEAL
21
1148201413
PLUG
22
1636815229
SEAL Was 1636815129
23
5459661112
MODULATED WASHER
24
SUN WHEEL SHAFT NLA - Was 5459661113 - A
25
5459661111
SNAP RING
26
5459661096
O-RING
27
5459661094
28
5459661109
RING GEAR
29
5459661108
DISK CASE housing washer
30
31
GLUE NLA - Was MCS001036A - A
Выбрано товаров: 0