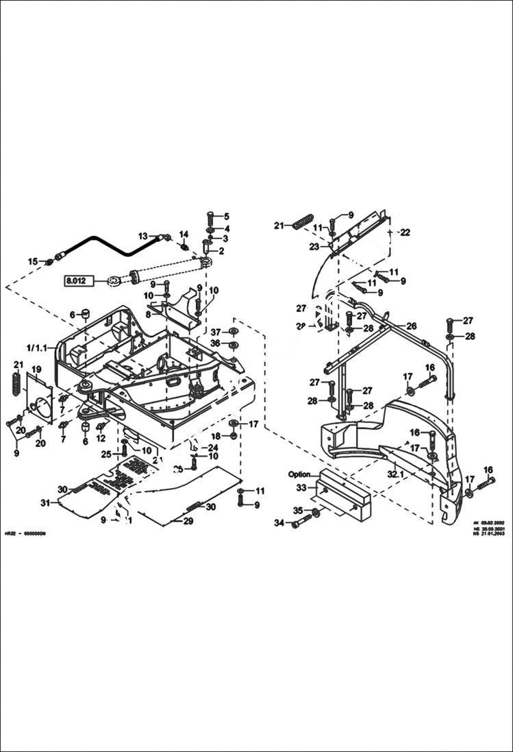
Запчасти Bobcat 442 UPPERCARRIAGE MAIN FRAME

Схема запчастей Bobcat 442 - UPPERCARRIAGE MAIN FRAME
FIT
1:1
100%

Артикул

Название

Примечание

Количество

1

6190005201

UPPERCARRIAGE

2

0154624120

PIN Was 6154624120 - A

3

0156029033

SPACER

4

1343707061

WASHER

5

1008707829

BOLT

6

5809625676

BUSHING

7

1607003006

GREASE NIPPLE

8

6190006120

BATTERY BRACKET

9

1008707018

BOLT

10

1290707018

WASHER

11

1343707057

WASHER

12

1607003010

GREASE NIPPLE

13

0190006009

HOSE

14

1915000004

FITTING

15

1915060551

FITTING Was 1915060553 - A

16

1007707355

BOLT

17

1343707069

WASHER

18

1212251018

NUT

19

6190006030

PLATE

20

1307707018

WASHER

21

7025098

SEAL, BULK/MTR - A

22

6190006034

PLATE

23

6190006036

PLATE

24

6190006025

PLATE

25

1008707817

BOLT

26

0190028050

FRAME Was 6190028050 - A

27

1008707030

BOLT

28

1343707059

WASHER

29

6190028071

COVER

30

5354640120

RUBBER Bulk - Sold per Meter

31

6190028173

COVER

32

0190147010

COUNTERWEIGHT

33

6190128020

COUNTERWEIGHT Option Circular

34

1045707143

BOLT Option Circular

35

1343707065

WASHER Option Circular

36

6209006046

WASHER

37

6209006047

WASHER

Выбрано товаров: 37