Качественные детали и логистика
Оригинальные и аналоговые запчасти с доставкой по России, Казахстану и Беларуси
©2022 PartSell ООО "Система" ИНН 2463123282 ОГРН 1212400004838
Центральный офис: г. Красноярск, Академика Киренского, д.87, пом.4
Телефон: 8 (800) 777-65-74 Email: zakaz@partsell.ru
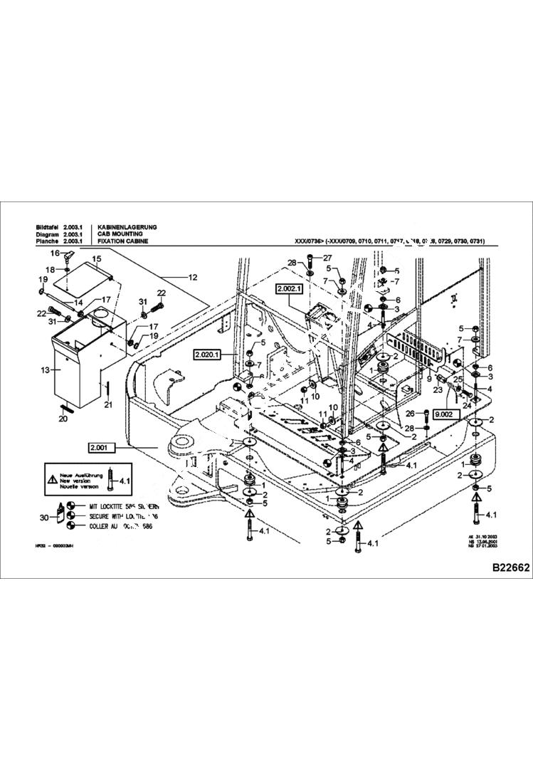
CAB MOUNTING (S/N 522311395 & Above)
№
Артикул
Название
Примечание
Количество
1
5101290960
BEARING
2
5153656312
SHIM
3
0190026081
TORSION LOCK
4
1366707348
THREADED BOLT
1008707237
BOLT
5
1212251015
NUT
6
1211707015
7
1343707063
WASHER
9
6190026090
AIR BAFFLE
10
1307707018
11
1212251011
12
6190026068
BOX W/Ref. 13-19
13
6190026070
BOX
14
0190026077
SHAFT
15
6190026078
COVER
16
5354606001
LOCKING
17
5657199001
PLAIN BEARING
18
1307707014
19
1455622311
CIRCLIP
20
5354640120
RUBBER
21
5354600020
RUBBER 1=1 METER
22
1008707018
23
6190026032
BRACKET
24
1008707213
25
1290707014
26
1045707430
27
1045707730
28
1343707061
30
THREADLOCK NLA - Was 5075632325 - A
31
1290707018
Выбрано товаров: 0