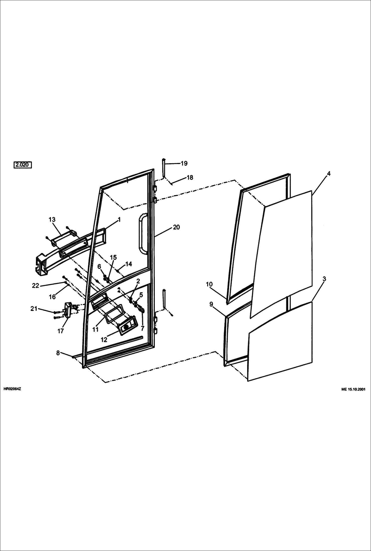
Запчасти Bobcat 442 OPERATORS CAB WITH SEALS - DOOR MAIN FRAME

Схема запчастей Bobcat 442 - OPERATORS CAB WITH SEALS - DOOR MAIN FRAME
FIT
1:1
100%

Артикул

Название

Примечание

Количество

1

5388662957

COVER

2

5388662632

CAP

3

5388662952

PANE

4

5388662958

PANE

5

1210707011

NUT

6

5388662946

NUT

7

5388662489

CLIP

8

5388662954

SEAL L=600MM

9

5388662959

SEAL

10

5388662960

SEAL

11

5388662961

SEAL

12

5388662962

DOOR HANDLE

12

5050650259

KEY

12

5354604442

PLASTIC HANDLE

13

5388662963

HANDLE

14

5388662964

NUT

15

1290707018

WASHER

16

1290707014

WASHER

17

5388661474

LOCK, LEFT

18

5388661432

SPRING PIN

19

5388661431

HINGE ROD

20

5388662965

DOOR FRAME, BLACK

21

1062707019

BOLT

22

5388662282

BOLT Was 5388662839 - A

Выбрано товаров: 24