Запчасти Bobcat 700s SEAT & SEAT BAR MAIN FRAME

Схема запчастей Bobcat 700s - SEAT & SEAT BAR MAIN FRAME
FIT
1:1
100%

Артикул

Название

Примечание

Количество

1

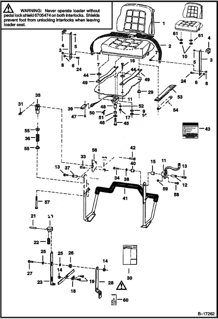
SEAT See Illustration SEAT/ B7185 STANDARD SEAT REQUIRES (1) OF Ref. 49 LOCATED ON R.H. SIDE - MILSCO SUSPENSION SEAT REQUIRES (2) OF Ref. 49 LOCATED ONE EACH SIDE - GRAMMER SUSPENSION SEAT

2

SEAT BELT NLA - Order 6675074 Seat Belt & (2) of Ref. 3 (6725373 Spring Plate) - Was 6667875 - A

2

SEAT BELT NLA - W/spring plates - Order 6675074 Seat Belt & (2) of Ref. 3 (6725373 Spring Plate) - Was 6725403 - A

2

6675074

SEAT BELT W/O spring plates

3

GUIDE ASSY. NLA - W/Ref. 4 & 5 - Order 6711908 Spring Plate, & (2) of Ref. 5 - Was 6711907 - A

3

6711908

SPRING PLATE Use W/Ref. 2 (NLA/6667875 Seat Belt)

3

6725373

SPRING PLATE Use W/Ref. 2 (6675074 seal belt)

4

GUIDE NLA - Order 6703703 - Was 6565355

5

6630207

RIVET 5

6

85D6

NUT, 5

7

17C716

BOLT

8

85D7

NUT

9

6701174

WASHER

10

61D5

NUT

10

59D5

NUT 5 Was 61D-5 - B

10

59D5

NUT 5

11

7105252

SENSOR, SEAT BAR POSITION Also Order Ref. 50 - Was 6680430 - A

12

6706685

BUSHING

13

35C612

BOLT

14

83D6

NUT 5

15

6680473

BUSHING, MAGNET magnetic - Was 6680442 - A

16

17C428

BOLT fastens thru body of Ref. 11 - 1.75 in. (44,4 mm)long - Was 6710539 - A

17

50D12

NUT

18

6563151

LINK

19

17C616

BOLT 5

20

6563148

BLOCK, SPRING

21

14J2512

PIN 5

22

6702430

SPRING, COMPRESSION

23

6578150

LOCK

24

17C612

BOLT 5

25

6700170

WASHER plastic

26

6559479

NUT

27

6705489

BOLT

28

6705474

LOCK SHIELD Never operate loader without pedal lock shield on both interlocks ... SEE WARNING ON PREVIOUS PAGE

29

6707319

NUT spacer

30

6722392

INSTRUCTIONS W/Ref. 28

31

6631418

RING, RETAINING

32

91D7

NUT

33

17C712

BOLT

34

17C608

BOLT

35

6713589

CLEVIS

36

6701535

SPRING

37

6706962

BUSHING

38

25E17

WASHER 5

39

6665000

CLIP

40

6680441

BUSHING keyed - Was 6664882 - A

41

6716777

SEAT BAR for Use W/Compression Springs- Was 6713609 - A

42

4F6106

PIN

43

6707134

DECAL instruction for LCS

44

6706890

WASHER

45

17C508

BOLT

46

25E16

WSHR

47

6664221

RETAINER

48

6710751

BUSHING spacer - 1.67 in. (42,4 mm) long

49

6706966

SPRING, SEAT plate

50

6680523

KEY,MAGNETIC magnet bushing - Was 6664881 - A

51

6680472

SENSOR tapered magnetic - Was 6666608 - A

52

25E10

WASHER

53

6711729

COVER

54

6711730

STRIP

55

6710659

BUSHING

56

6710660

MOUNT

57

6713887

BOLT

58

35C410

BOLT 5 fastens thru tab of Ref. 11 - 5/8 in. (15,9 mm) long

59

83D4

NUT 10

60

6705720

DECAL

61

6707318

GUIDE Was 6571991 - A

61

6707318

GUIDE

Выбрано товаров: 68