Запчасти Bobcat 700s CONTROL PEDALS HYDRAULIC SYSTEM

Схема запчастей Bobcat 700s - CONTROL PEDALS HYDRAULIC SYSTEM
FIT
1:1
100%

Артикул

Название

Примечание

Количество

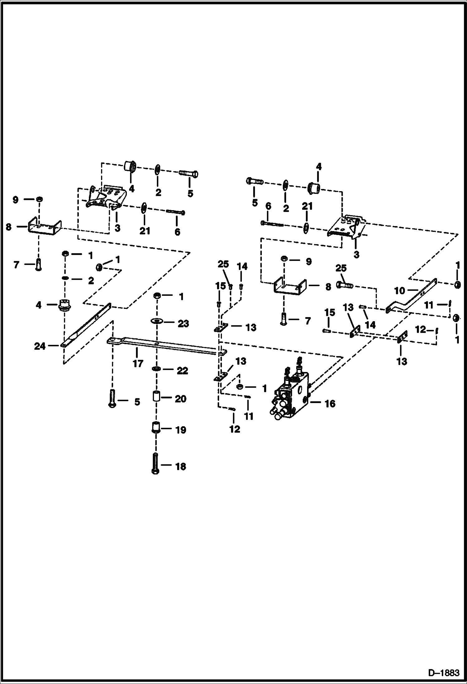
1

95D6

NUT Was 91D000006B - A

2

6563914

WASHER

3

7115219

PEDAL Was 6726680 - A

4

6665701

BUSHING, PRESS FIT Was 6630081 - A

5

17C624

BOLT 5 Was 17C000626B - B

6

6564657

PIN

7

7C620

BOLT Was 6704349 - B

8

6726679

MOUNT Was 6564658 - A

9

57D6

NUT 5

10

6577813

BAR

11

1306637

CLIP

12

6513495

COTTER PIN

13

6706680

LINK Also Order Ref. 1 & 25 - Was 6564544 - A

14

4F6106

PIN

15

PIN NLA - Was 6564654 - A

16

VALVE See Illustration HYDRAULIC CONTROL VALVE/ E1886

17

6577814

LEVER

18

6565067

BOLT

19

6577815

RETAINING NUT

20

6569599

BEARING

21

25E21

WASHER 5 Use if serrations on pins are too long

22

6569597

WASHER

23

616789

WASHER

24

6576302

BAR

25

17C620

BOLT

Выбрано товаров: 25