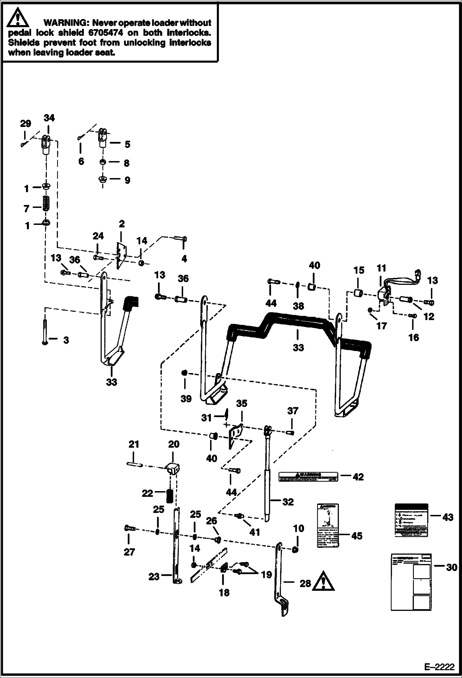
Запчасти Bobcat 800s SEAT BAR MAIN FRAME

Схема запчастей Bobcat 800s - SEAT BAR MAIN FRAME
FIT
1:1
100%

Артикул

Название

Примечание

Количество

1

6710659

BUSHING deep spring base

2

6710660

MOUNT weld-on

3

6713887

BOLT Use W/spring loaded seat bar assy - Was 6711897 - A

4

4F6106

PIN clevis - W/cotter pin hole

5

2J6208

YOKE .375-24 thread size

6

1306637

CLIP hair pin

7

6701535

SPRING compression spring - Use W/Ref. 34

8

8D6

NUT 5 std. 3/8

9

6571991

GUIDE shallow spring base

10

59D6

NUT

11

7105252

SENSOR, SEAT BAR POSITION Was 6680430 - A

12

6706685

BUSHING

13

35C608

BOLT 3/8 x .50''

13

35C612

BOLT 3/8 x .75''

14

91D7

NUT

15

6680473

BUSHING, MAGNET magnetic - Was 6680442 - A

16

35C410

BOLT 5 fastens thru tab of Ref. 11

16

17C428

BOLT fastens thru body of Ref. 11 - Was 6710539 - A

17

83D4

NUT 10 fastens thru tab of Ref. 11

17

50D12

NUT fastens thru body of Ref. 11

18

6563151

LINK

19

17C616

BOLT 5

20

6563148

BLOCK, SPRING

21

14J2512

PIN 5

22

6702430

SPRING, COMPRESSION

23

6578150

LOCK

24

17C712

BOLT

25

6700170

WASHER plastic

26

6559479

NUT

27

6705489

BOLT

28

6705474

LOCK SHIELD Never operate loader without pedal lock shield on both interlocks ... SEE WARNING ON PREVIOUS PAGE

29

6631418

RING, RETAINING

30

6722392

INSTRUCTIONS For Ref. 28

31

6631418

RING, RETAINING

32

6664207

GAS SPRING

33

6706358

SEAT BAR for Use W/Gas Spring

33

SEAT BAR NLA - for Use W/Compression Spring - Order 6713609 seat bar and (2) each of Ref. 1, 3, 29 & 34 - Was 6710661 - A

33

6716777

SEAT BAR Use W/Ref 34 - Was 6713609 - A

34

6713589

CLEVIS

35

6706388

BRACKET

36

6706962

BUSHING

37

4F5062

PIN clevis - W/cotter pin hole

38

25E17

WASHER 5

39

85D5

NUT 5

40

6680441

BUSHING keyed - Was 6664882 - A

41

6649244

BALL STUD

42

6577754

DECAL, WARNING 5 gas spring

43

6707134

DECAL instruction for LCS

44

17C612

BOLT 5 3/8'' x 3/4''

44

17C608

BOLT 3/8 x .50''

45

6705720

DECAL

Выбрано товаров: 0