Запчасти Bobcat T-Series HAND CONTROLS HYDROSTATIC SYSTEM

Схема запчастей Bobcat T-Series - HAND CONTROLS HYDROSTATIC SYSTEM
FIT
1:1
100%

Артикул

Название

Примечание

Количество

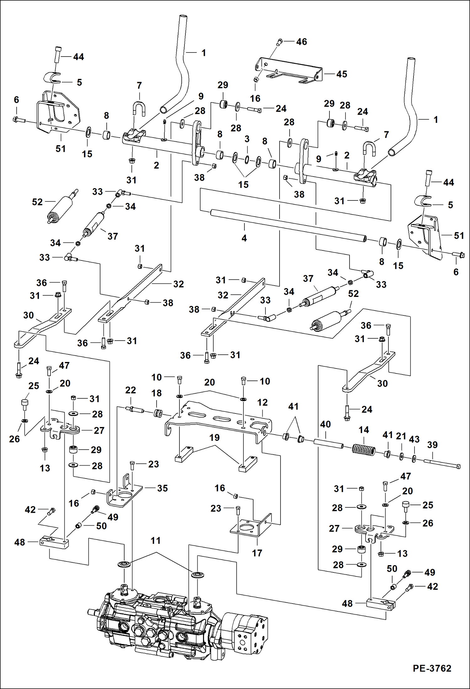
1

6702543

LEVER, STEERING

2

7110571

BELLCRANK, STEERING Use W/Ref. 8 (6703879 bearing)

3

6599741

WASHER wave - Use W/Ref. 15

3

7154546

WASHER, WAVE

4

6716545

ROD

5

7121779

PAD

6

45C620

BOLT

7

6732997

U-BOLT

8

6703879

BUSHING, PLASTIC Use W/Ref. 2 (7110571 bellcrank)

9

10H35

FITTING, GREASE 10 threaded

10

17C616

BOLT 5 Was 7105192 - B

11

6687913

SEAL

12

6734298

MOUNT

13

98D6

NUT

14

6701535

SPRING

15

6716916

WASHER

16

95D6

NUT

17

7109904

BRACKET

18

6706098

GUIDE

19

6702716

BLOCK

20

7103217

WASHER

21

6563914

WASHER

22

6577058

PIN

23

1CM820

BOLT

24

49C628

BOLT

25

6673789

BEARING

26

7100699

WASHER

27

7110365

ARM, PINTLE

28

6737388

WASHER

29

6685060

BUSHING, TORSION torsion - 26,8 mm (1.055'') OD

30

7125363

LINK 19'' (482,6 mm) long

31

83D6

NUT 5

32

7139420

LINK 586 mm (23.07'') long

33

6599744

BALL JOINT

34

62D6

NUT 5

35

7109905

BRACKET

36

17C620

BOLT

37

GAS SPRING NLA - Japan Option - Order Ref. 52 - Was 6649551 - A

38

96D6

NUT

39

17C680

BOLT

40

6715164

SLEEVE, SPRING

41

6715163

BUSHING, PRESS FIT

42

73G624

BOLT

43

25E24

WASHER AHC & ACS

44

73G828

BOLT

45

7147580

MOUNT damper - W/mount for back-up alarm switch

46

17C612

BOLT 5

47

47C620

BOLT

48

7103708

BRACKET pintle arm

49

7103711

BOLT

50

7105223

SPACER

51

7128600

BRACKET RH

51

7128601

BRACKET LH

52

7188108

GAS SPRING

Выбрано товаров: 54