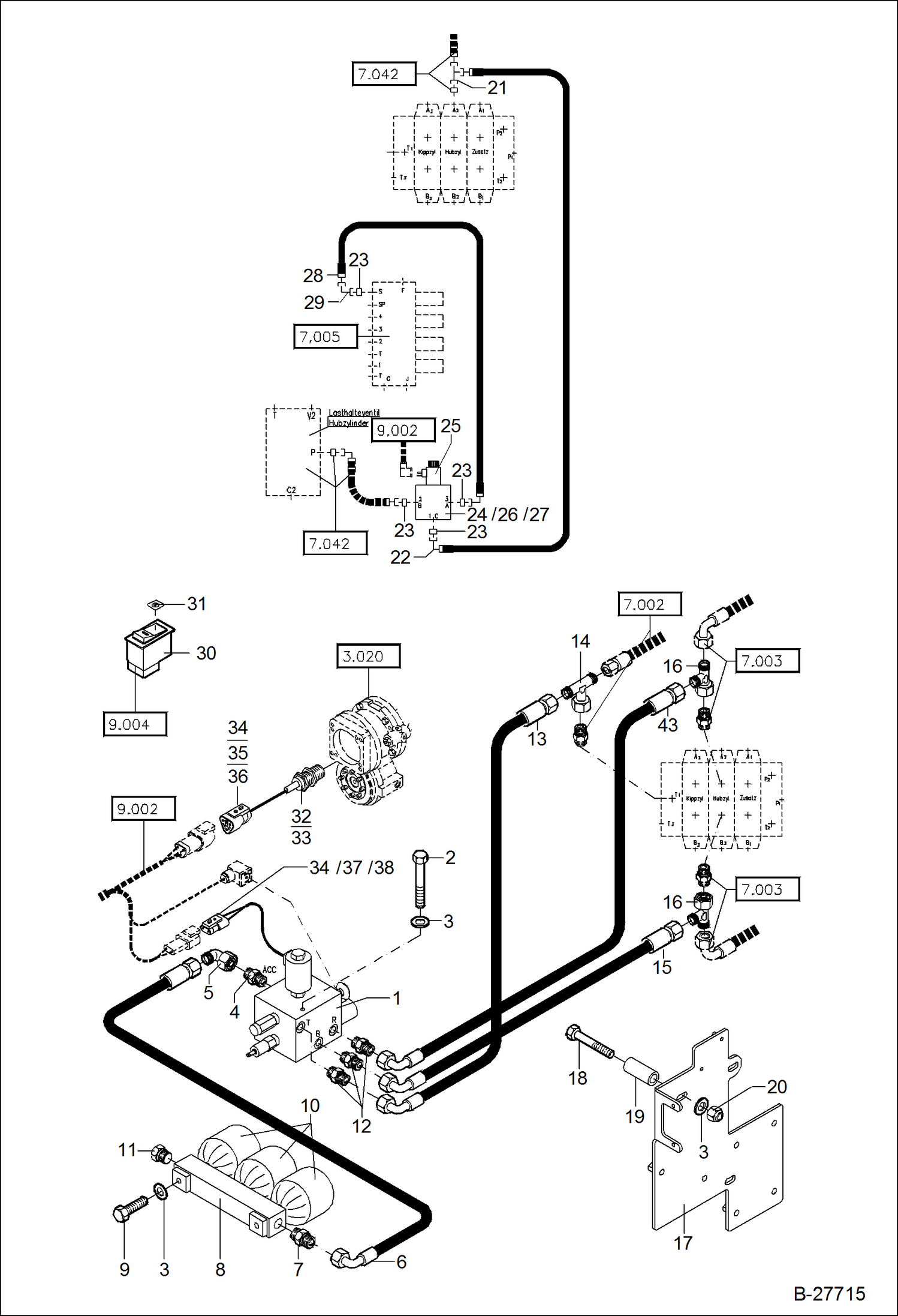
Запчасти Bobcat WL350 HYDRAULIC INSTALLATION - LOAD VIBRATION ABSORBER HYDRAULIC SYSTEM

Схема запчастей Bobcat WL350 - HYDRAULIC INSTALLATION - LOAD VIBRATION ABSORBER HYDRAULIC SYSTEM
FIT
1:1
100%

Артикул

Название

Примечание

Количество

1

5320001012

CONTROL VALVE

2

1007707126

BOLT M 10X140

3

1290707020

WASHER 10,5

4

1915060471

FITTING

5

1924060155

FITTING

6

4266067408

HOSE

7

1915060666

FITTING

8

0397785006

ACCUMULATOR BLOCK

9

1008707124

BOLT M 10X30

10

5606655010

PRESSURE ACCUMULATOR

11

1912060108

PLUG

12

1915060261

FITTING

13

4110090351

HOSE

14

1919060153

FITTING

15

4260093374

HOSE

16

1919060353

FITTING

17

0451539005

VALVE PLATE

18

1008707924

BOLT M 10X65

19

0188814218

SPACE BUSHING

20

1212251013

NUT M 10

21

1919060351

FITTING

22

4506075351

HOSE

23

1915060255

FITTING

24

5320001001

CONTROL VALVE W/Ref. 25

25

5320001002

SOLENOID CARTRIDGE

26

1007707214

BOLT M 6X45

27

1290707014

WASHER 6,4

28

4506115351

HOSE ASSEMBLY CPL.

29

1924060151

FITTING

30

5050651363

ROCKER SWITCH

31

5358650307

SYMBOL SCHWINGUNGSDAEMPFUNG

32

5399010176

SWITCH, PROXIMITY Was 5472661591 - A

33

1908000004

COUNTER NUT M 18X1,5

34

5350555321

MALE TERMINAL

35

5350555307

LOCK

36

5350555315

HOUSING (MALE)

37

5350555355

LOCK

38

5350555349

PLUG

43

4260081374

HOSE

Выбрано товаров: 39