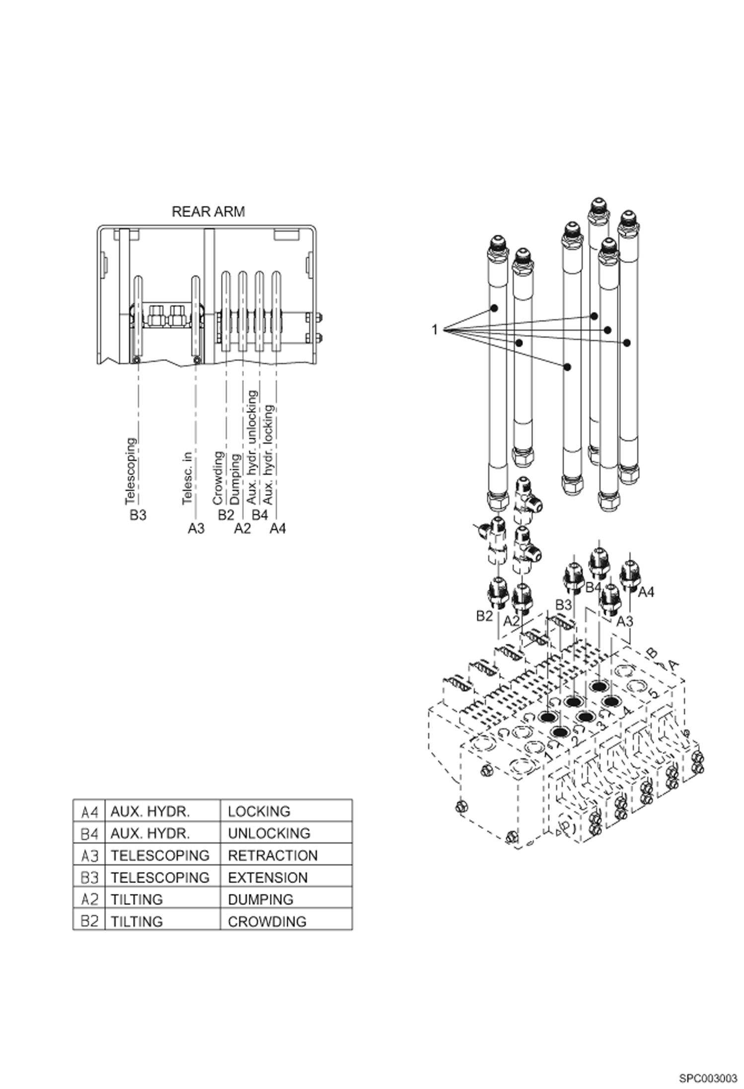
Запчасти Bobcat T40170 BOOM HYDRAULIC SUPPLY FROM CONTROL VALVE HYDRAULIC SYSTEM

Схема запчастей Bobcat T40170 - BOOM HYDRAULIC SUPPLY FROM CONTROL VALVE HYDRAULIC SYSTEM
FIT
1:1
100%

Артикул

Название

Примечание

Количество

1

85471.1

Hose

Выбрано товаров: 0