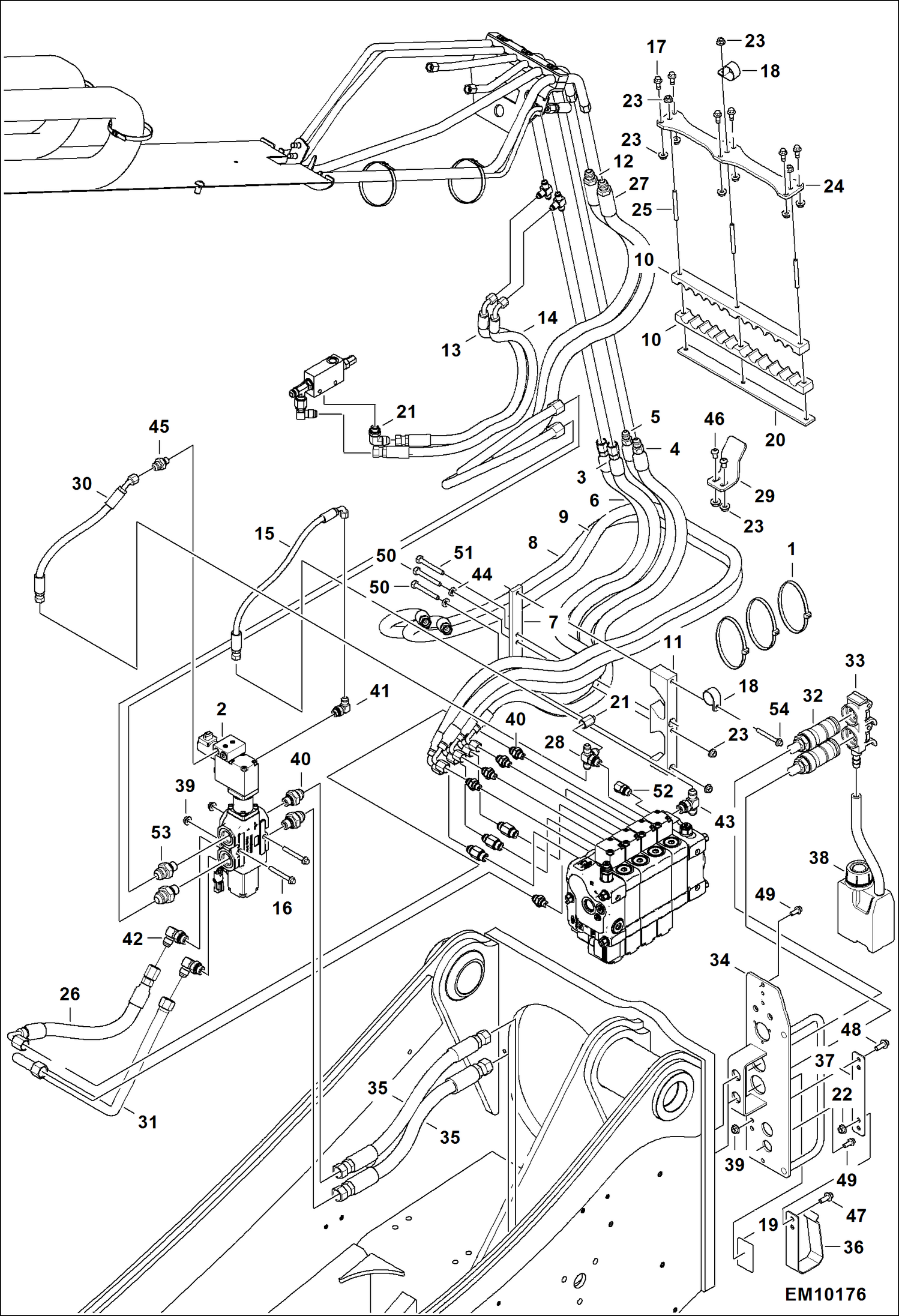
Запчасти Bobcat TL360 HYDRAULIC CIRCUITRY (Rear Auxiliary Hydraulics) ACCESSORIES & OPTIONS

Схема запчастей Bobcat TL360 - HYDRAULIC CIRCUITRY (Rear Auxiliary Hydraulics) ACCESSORIES & OPTIONS
FIT
1:1
100%

Артикул

Название

Примечание

Количество

1

6624289

STRAP, TIE

2

6687192

VALVE DIVERTER

3

7156110

HOSE, HYD

4

7156121

HOSE, HYD

5

7156189

HOSE, HYD

6

7156190

HOSE, HYD

7

7161392

PLATE

8

7161455

HOSE, HYD

9

7226744

HOSE, HYD Was 7161755 - B

10

7161770

CLAMP

11

7161771

CLAMP

12

7163483

HOSE, HYD

13

7163808

HOSE, HYD

14

7163809

HOSE, HYD

15

7166894

HOSE, HYD

16

29CM870

BOLT

17

29CM880

BOLT

18

31H31

CLIP Was 30H31 - D

19

7169037

DECAL, AUX HYD

20

7169265

PLATE

21

36K5

CAP

22

43DM6

NUT

23

51DM8

NUT

24

7173626

PLATE

25

7174163

ROD, THREADED

26

7174521

HOSE, HYD

27

7188739

HOSE, HYD

28

7192055

FITTING, HYD CROSS

29

7199898

PLATE

30

7202239

HOSE, HYD

31

7221058

TUBELINE, HYD Was 7203686 - B

32

7203827

COUPLER, FEMALE

33

7203830

CAP, OIL COLLECTOR

34

7235447-GB

PLATE Was 7235447 - D

35

7203854

HOSE HYDRAULIC ASSY

36

7204252

HOLDER,TANK

37

7204253

BRACKET, TANK

38

7204259

TANK, OIL COLLECTOR

39

43DM8

NUT

40

15KB1212

FITTING, HYD CONNECTOR

40

79K12

O RING 10

41

17KB0406

FITTING, HYD ELBOW

41

79K6

O RING 10

42

17KB1212

FITTING, HYD ELBOW

42

79K12

O RING 10

43

19KB0406

FITTING, HYD TEE

43

79K6

O RING 10

44

1EM80

WASHER

45

15KB0606

FITTING, HYD CONNECTOR

45

79K6

O RING 10

46

27CM830

BOLT

47

29CM620

SCREW

48

29CM825

BOLT

49

29CM835

BOLT

50

4CM890

BOLT

51

29CM860

BOLT

Выбрано товаров: 56