Качественные детали и логистика
Оригинальные и аналоговые запчасти с доставкой по России, Казахстану и Беларуси
©2022 PartSell ООО "Система" ИНН 2463123282 ОГРН 1212400004838
Центральный офис: г. Красноярск, Академика Киренского, д.87, пом.4
Телефон: 8 (800) 777-65-74 Email: zakaz@partsell.ru
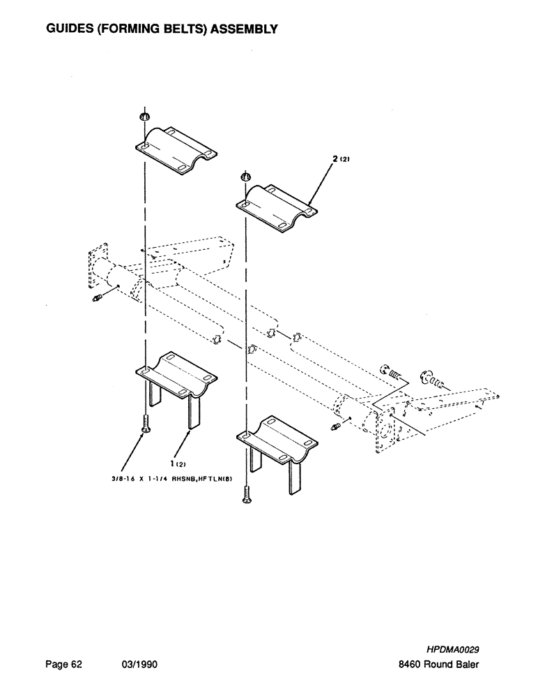
(062) - GUIDES, FORMING BELTS, ASSEMBLY
№
Артикул
Название
Примечание
Количество
1
700122577
GUIDE
- belt
2шт.
2
700122578
CLAMP - half
700054
CARRIAGE BOLT,Sq Nk, 3/8" - 16 x 1 1/4", Gr 5
3/8-16 x 1/2 RHSNB
8шт.
Выбрано товаров: 0