Качественные детали и логистика
Оригинальные и аналоговые запчасти с доставкой по России, Казахстану и Беларуси
©2022 PartSell ООО "Система" ИНН 2463123282 ОГРН 1212400004838
Центральный офис: г. Красноярск, Академика Киренского, д.87, пом.4
Телефон: 8 (800) 777-65-74 Email: zakaz@partsell.ru
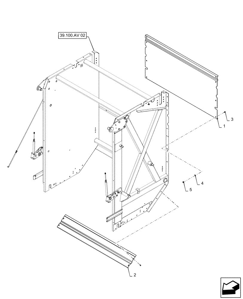
(90.116.AO[02]) - TAILGATE SHIELDS
№
Артикул
Название
Примечание
Количество
1
84405901
SHIELD
Rear
1шт.
2
84405151
Lower
3
308761
CARRIAGE BOLT,M8 x 1.25 x 25mm, Cl 8.8
20шт.
4
322358
BELLEVILLE WASHER,M8 Bolt Size x 18mm OD x 1.4mm Thk
5
9804277
FLANGE NUT,Hex, M8 x 1.25, Cl 8
Выбрано товаров: 0