Качественные детали и логистика
Оригинальные и аналоговые запчасти с доставкой по России, Казахстану и Беларуси
©2022 PartSell ООО "Система" ИНН 2463123282 ОГРН 1212400004838
Центральный офис: г. Красноярск, Академика Киренского, д.87, пом.4
Телефон: 8 (800) 777-65-74 Email: zakaz@partsell.ru
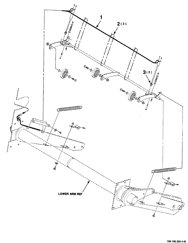
(4-016) - ELECTRICAL ASSEMBLY, BALE SHAPE MONITOR
№
Артикул
Название
Примечание
Количество
1
700716070
HARNESS
wire
1шт.
2
L18337
CABLE TIE,9.95"-12.1" lg
CABLE STRAP TIE cable
3шт.
3
8025637
SWITCH
2шт.
Выбрано товаров: 0