Запчасти Case IH LB433S (18.87485072[01]) - DIA : ROLLER BALE CHUTE - SEASON 2009 (18) - ACCESSORIES

Схема запчастей Case IH LB433S - (18.87485072[01]) - DIA : ROLLER BALE CHUTE - SEASON 2009 (18) - ACCESSORIES
7
9
9
1
5
3
8
10
4
9
2
4
6
FIT
1:1
100%

Артикул

Название

Примечание

Количество

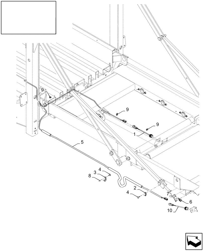
87485072

DIA KIT, HARVESTER

1шт.

1

87342073

SENSOR

B11 - BALE DROP

1шт.

2

9507807

CLAMP,8.3mm ID, 6.7mm Bolt Hole, P Type

4шт.

3

84818443

CLAMP,16.3mm ID, 6.7mm Bolt Hole, P Type

3шт.

4

9512290

RIVET,Pop, 4.8mm OD x 17.8mm L

7шт.

5

87316472

WIRE HARNESS

1шт.

6

84058832

CLIP

1шт.

7

445394

RIVET,Pop, 3/16" x 1/2" OAL

1шт.

8

9824326

WASHER,5.3mm ID x 10mm OD x 1mm Thk

2шт.

9

86566990

CABLE TIE,292mm OAL x 4.8mm W

CABLE STRAP

16шт.

10

87342073

SENSOR

B18 - BALE CHUTE PROTECTION

1шт.

Выбрано товаров: 11