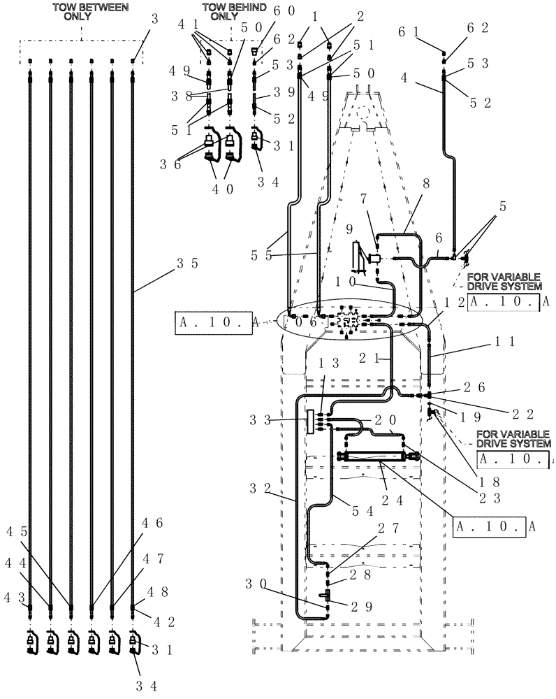
Запчасти Case IH ADX3380 (A.10.A[03]) - HYDRAULICS - MAIN FRAME (FROM 06/2004 TO 07/2006) A - Distribution Systems

Схема запчастей Case IH ADX3380 - (A.10.A[03]) - HYDRAULICS - MAIN FRAME (FROM 06/2004 TO 07/2006) A - Distribution Systems
19
54
18
60
34
48
62
49
51
47
31
61
6
30
2
52
3
62
26
23
33
53
51
41
32
46
35
39
44
9
13
38
40
5
4
53
34
50
28
11
36
20
22
7
31
42
29
52
24
27
10
1
45
50
55
8
12
43
21
49
FIT
1:1
100%

Артикул

Название

Примечание

Количество

1

9358

QUICK MALE COUPLING,1" - 11.5 NPTF

1"

2шт.

Tow Behind

1шт.

1

9412

QUICK MALE COUPLING

1/2"

2шт.

Tow Between

1шт.

2

21668

REDUCER FITTING,1/2" - 14 Male NPT x 3/4" - 14 Female NPT

hydraulic 1/2" mpt x 3/4" fpt

2шт.

Tow Between

1шт.

3

9412

QUICK MALE COUPLING

1/2"

8шт.

4

9707

HYDRAULIC HOSE,217.00" mm, 0.50", SAE J517

, Years: -01-JAN-06

1шт.

Tow Behind

1шт.

4

87500627

HYDRAULIC HOSE,19mm ID x 5512mm L

3/4" x 217" fl, 1/2" mpt x 1/2" fjic, Start Year: 01-FEB-06

1шт.

Tow Behind

1шт.

Variable Drive Only

1шт.

4

87500629

HYDRAULIC HOSE

1/2" x 217" fl, 1/2" mpt x 1/2" fjic, Start Year: 01-FEB-06

1шт.

Tow Behind

1шт.

Mechanical drive only

1шт.

4

21553

HYDRAULIC HOSE

1/2" x 141" fl, 1/2" mpt x 1/2" fjic, Years: -01-JAN-06

1шт.

Tow Between

1шт.

4

87500626

HYDRAULIC HOSE,19mm ID x 3581mm L

3/4" x 141" fl, 1/2" mpt x 1/2" fjic, Start Year: 01-FEB-06

1шт.

Variable Drive Only

1шт.

Tow Between

1шт.

4

87500628

HYDRAULIC HOSE,0.50" ID x 141.00", SAE J517,SAE J516

1/2" x 141" fl, 1/2" mpt x 1/2" fjic, Start Year: 01-FEB-06

1шт.

Mechanical drive only

1шт.

Tow Between

1шт.

5

216791

ELBOW,90 Degree, 3/4"-16, 37 Degree x 3/4"-16, 37 Degree

1шт.

5

128996

TEE,3/4" - 16 JIC x 3/4" - 16 JIC x 3/4" - 16 JIC

1шт.

6

9335

HYDRAULIC HOSE,24.00" mm, 0.38", SAE J517

1шт.

7

86512926

HYD CONNECTOR,1-5/16" - 12 JIC x 1-1/16" - 12 ORB

2шт.

8

21559

HYDRAULIC HOSE

1" x 52" fl, 1" fjic x 1" fjic

1шт.

Single Fan

1шт.

8

21558

HYDRAULIC HOSE

1" x 64" fl, 1" fjic x 1" fjic

1шт.

Dual Fan

1шт.

9

9926

HYDRAULIC MOTOR

19cc ultra, Years: 01-OCT-04-01-MAY-09

1шт.

Single Fan

1шт.

9

87488819R

REMAN-HYD MOTOR

19cc, Years: 01-OCT-04-01-MAY-09

1шт.

9

87488819C

CORE-MOTOR HYDRAULIC

Return Number

1шт.

9

9924

HYDRAULIC MOTOR

dual fan

1шт.

Dual Fan

1шт.

9

23827R

REMAN-HYDROSTAT PUMP

ADX3360 (6/01-5/03), ADX3380 (6/03-7/08), ADX3430 (1/04-7/08), Reman for New P/N 9924

1шт.

9

23827C

CORE-HYDROSTAT PUMP

Return Number

1шт.

9

23827

HYDRAULIC MOTOR

19 cc Danfoss phase ii, Years: -30-SEP-04, Serial Range: -CBJ0019039

1шт.

Dual Fan

1шт.

9

23827R

REMAN-HYDROSTAT PUMP

ADX3360 (6/01-5/03), ADX3380 (6/03-7/08), ADX3430 (1/04-7/08), All Serial Range: -CBJ0019039

1шт.

9

23827C

CORE-HYDROSTAT PUMP

Return Number

1шт.

9

9926

HYDRAULIC MOTOR

19cc ultra, Years: 01-OCT-04-01-MAY-09, Start Serial: CBJ0005396

1шт.

Dual Fan

1шт.

9

87488819R

REMAN-HYD MOTOR

19cc, Years: 01-OCT-04-01-MAY-09, Start Serial: CBJ0005396

1шт.

9

87488819C

CORE-MOTOR HYDRAULIC

Return Number

1шт.

10

21557

HYDRAULIC HOSE

1" x 40" fl, 1" fjic x 1" fjic

1шт.

Single Fan

1шт.

10

21559

HYDRAULIC HOSE

1" x 52" fl, 1" fjic x 1" fjic

1шт.

Dual Fan

1шт.

11

22518

LINE

hydraulic 1/2" od x 28 1/2" ~ 1/2" fjic x 1/2" fjic

1шт.

12

22507

HYDRAULIC HOSE,0.50" ID x 26.00", SAE J517, SAE J516, SAE J846, SAE 1273

1шт.

13

76350

HYD CONNECTOR,9/16" - 18 ORB x 9/16" - 18 JIC

4шт.

18

128996

TEE,3/4" - 16 JIC x 3/4" - 16 JIC x 3/4" - 16 JIC

1шт.

19

86511868

PLUG,3/4" - 16 JIC

1шт.

20

9848

HYDRAULIC HOSE

1/4" x 19" fl, 3/8" fjic x 3/8" fjic

2шт.

21

87446380

HYDRAULIC HOSE,0.25" ID x 99.00", SAE 100R17, SAE J517, SAE J516, SAE J343

1/4" x 99" fl, 3/8" fjic x 3/8" fjic

1шт.

22

86511870

TEE,3/4" - 16 JIC x 3/4" - 16 JIC x 3/4" - 16 JIC

1шт.

23

21395

FITTING

3/8" mpt x 1/4" mjic with .0313" orifice

2шт.

24

87500855

HYDRAULIC CYLINDER,Double Acting, 28.57mm Rod, 304.8mm Stroke

2" x 12" Monarch 2500 psi without pins

1шт.

Refer to 2" x 12" Hydraulic Cylinder parts page for details

1шт.

26

86624135

REDUCER,37 Degree, 3/4"-16, Fem x 9/16"-18 Male

1шт.

27

128821

UNION,9/16" - 18 JIC x 9/16" - 18 JIC

1шт.

28

9895

FITTING

hydraulic swivel adapter 3/8" mpt x 3/8" fjic

1шт.

29

412764A1

HYDRAULIC VALVE,3/8" FPT x 3/8" FPT

ball 3/8" fpt

1шт.

30

235534

HYD CONNECTOR,9/16" - 18 JIC x 3/8" - 18 NPT

1шт.

31

1994568C1

COUPLING, QUICK, FEM

1/2" fpt

7шт.

32

51200066

HYDRAULIC HOSE

1/4" x 106" fl, 3/8" fjic x 3/8" fjic

1шт.

Tow Behind

1шт.

32

22511

HYDRAULIC HOSE

1/4" x 134" fl, 3/8" fjic x 3/8" fjic

1шт.

Tow Between

1шт.

33

87506228

HYDRAULIC VALVE

1 spool

1шт.

Includes 21346, 8632 and 432-48

1шт.

34

86592083

DUST CAP

pioneer coupler - 1/2"

7шт.

35

21554

HYDRAULIC HOSE,12.7mm ID x 362mm L, SAE 100R2

1/2" x 362" fl, 1/2" mpt x 1/2" mpt

6шт.

36

9359

COUPLING, QUICK, FEM

1"

2шт.

38

21555

HYDRAULIC HOSE,25.4mm ID x 12319mm L, SAE 100R17

1" x 485" fl, 3/4" mpt x 1" mpt

2шт.

Fan pressure and return

1шт.

39

87500095

HYDRAULIC HOSE,19mm ID x 12319mm L

1/2" x 485" fl, 1/2" mpt x 1/2" mpt, Serial Range: -CBJ0004441

1шт.

Used on ADX3380

1шт.

39

87500095

HYDRAULIC HOSE,19mm ID x 12319mm L

3/4" x 485" fl, 1/2" mpt x 1/2" mpt, Start Serial: CBJ0004442

1шт.

Used on ADX3430

1шт.

40

9360

PLUG

dust, pioneer coupler - 1"

2шт.

41

9412K

KIT

pioneer coupler - 1/2" male tip x 1/2" fpt

1шт.

Includes 9412 and 21668

1шт.

41

9412

QUICK MALE COUPLING

1/2"

2шт.

Tow Behind

1шт.

41

21668

REDUCER FITTING,1/2" - 14 Male NPT x 3/4" - 14 Female NPT

hydraulic 1/2" mpt x 3/4" fpt

2шт.

Tow Behind

1шт.

42

GL-372

COVER

hydraulic hose label - 1"

1шт.

43

GL-700.38

DECAL

wing lift pressure

1шт.

44

GL-700.39

DECAL

wing lift return

1шт.

45

GL-700.36

DECAL

depth pressure

1шт.

46

GL-700.37

DECAL

depth return

1шт.

47

GL-700.40

DECAL

auxiliary pressure

1шт.

48

GL-700.41

DECAL

auxiliary return

1шт.

49

GL-700.32

DECAL

fan pressure

1шт.

50

GL-700.33

DECAL

fan return

1шт.

51

GL-374

COVER

hydraulic hose label - 2"

1шт.

52

GL-700.42

DECAL

drain

1шт.

53

GL-375

COVER

label 1" case drain hyd

1шт.

54

9846

HYDRAULIC HOSE

1/4" x 110" fl, 3/8" fjic x 3/8" fjic

1шт.

Tow Between

1шт.

54

9859

HYDRAULIC HOSE

1/4" x 69" fl, 3/8" fjic x 3/8" fjic

1шт.

Tow Behind

1шт.

55

21556

HYDRAULIC HOSE

1" x 252" fl, 1" mpt x 1" fjic

2шт.

Tow Behind

1шт.

55

21551

HYDRAULIC HOSE,25.4mm ID x 172mm L, SAE 100R17

1" x 172" fl, 3/4" mpt x 1" fjic

2шт.

Tow Between

1шт.

56

9489

SEAL KIT

Danfoss 10, 12, 19 cc motors

1шт.

For motor 9924

1шт.

56

51200121

SEAL KIT

hydraulic motor 19cc ultra

1шт.

For motor 9926

1шт.

56

425297A1

SEAL KIT

Danfoss 10,12,19 cc

1шт.

Dual Fan

1шт.

For motors 9924 and 23827

1шт.

57

9972

SEAL

hydraulic motor Ultra 19cc

1шт.

For motor 9926

1шт.

57

9490

SEAL

hydraulic motor Danfoss 10,12,19cc

1шт.

Dual Fan

1шт.

For motors 9924 and 23827

1шт.

58

22156

HYDRAULIC OIL FILTER

and seal kit

1шт.

59

51200102

O-RING,1.112" ID x 1.318" OD x 0.103"

1 7/64" id x 1 5/16" od x 3/32" nitrile

1шт.

60

85999239

QUICK MALE COUPLING,3/8" x 3/4" - 16 ORB

stl 3/8"

1шт.

61

85999239

QUICK MALE COUPLING,3/8" x 3/4" - 16 ORB

stl 3/8"

1шт.

61

9412

QUICK MALE COUPLING

1/2"

1шт.

Tow Behind

1шт.

62

218-5254

HYD CONNECTOR,3/4" - 16 ORB x 1/2" - 14 NPT

1шт.

Tow Between

1шт.

Выбрано товаров: 130