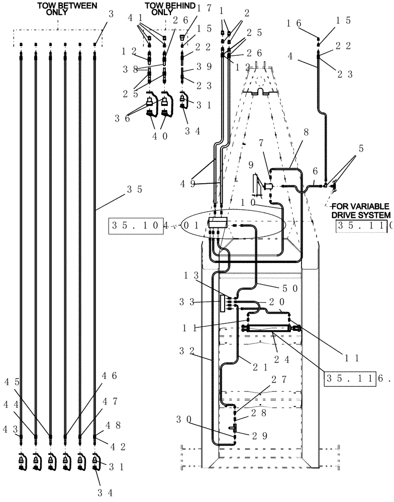
Запчасти Case IH 3380 (35.100.01) - HYDRAULICS - MAIN FRAME (3 TANK) (35) - HYDRAULIC SYSTEMS

Схема запчастей Case IH 3380 - (35.100.01) - HYDRAULICS - MAIN FRAME (3 TANK) (35) - HYDRAULIC SYSTEMS
34
15
40
13
31
16
2
5
29
33
17
8
44
35.116.02
35.110.01
35.104.01
46
22
10
32
24
50
42
6
26
48
26
11
34
27
43
45
11
49
22
38
28
12
20
30
25
1
21
31
7
12
35
39
9
36
23
41
4
47
25
15
3
23
FIT
1:1
100%

Артикул

Название

Примечание

Количество

1

9358

QUICK MALE COUPLING,1" - 11.5 NPTF

1"

1шт.

Tow Behind

1шт.

1

9412

QUICK MALE COUPLING

1/2"

1шт.

Tow Between

1шт.

2

21668

REDUCER FITTING,1/2" - 14 Male NPT x 3/4" - 14 Female NPT

hydraulic 1/2" mpt x 3/4" fpt

1шт.

Tow Between

1шт.

3

9412

QUICK MALE COUPLING

1/2"

6шт.

Tow Behind

1шт.

4

87500627

HYDRAULIC HOSE,19mm ID x 5512mm L

3/4" x 217" fl, 1/2" mpt x 1/2" fjic

1шт.

Tow Behind

1шт.

Variable Drive Only

1шт.

4

87500629

HYDRAULIC HOSE

1/2" x 217" fl, 1/2" mpt x 1/2" fjic

1шт.

Tow Behind

1шт.

Mechanical drive only

1шт.

4

87500626

HYDRAULIC HOSE,19mm ID x 3581mm L

3/4" x 141" fl, 1/2" mpt x 1/2" fjic

1шт.

Tow Between

1шт.

Variable Drive Only

1шт.

4

87500628

HYDRAULIC HOSE,0.50" ID x 141.00", SAE J517,SAE J516

1/2" x 141" fl, 1/2" mpt x 1/2" fjic

1шт.

Tow Between

1шт.

Mechanical drive only

1шт.

5

216791

ELBOW,90 Degree, 3/4"-16, 37 Degree x 3/4"-16, 37 Degree

1шт.

Mechanical drive only

1шт.

5

128996

TEE,3/4" - 16 JIC x 3/4" - 16 JIC x 3/4" - 16 JIC

1шт.

Variable Drive Only

1шт.

6

9335

HYDRAULIC HOSE,24.00" mm, 0.38", SAE J517

1шт.

7

86512926

HYD CONNECTOR,1-5/16" - 12 JIC x 1-1/16" - 12 ORB

2шт.

8

87500081

HYDRAULIC HOSE

3/4" x 104" fl

1шт.

Single or Dual Fan

1шт.

9

425298A1

HYDRAULIC MOTOR

12.6cc Danfoss

1шт.

Direct Drive

1шт.

Single Fan

1шт.

9a

425297A1

SEAL KIT

Danfoss 10,12,19 cc

1шт.

Direct Drive

1шт.

Single Fan

1шт.

9b

9490

SEAL

hydraulic motor Danfoss 10,12,19cc

1шт.

Direct Drive

1шт.

Single Fan

1шт.

9

9926

HYDRAULIC MOTOR

19cc ultra, Years: 01-OCT-04-01-MAY-09

1шт.

Single Fan

1шт.

9

9926C

CORE-MOTOR HYDRAULIC

Return Number, HYDRAULIC MOTOR

1шт.

9a

51200121

SEAL KIT

hydraulic motor 19cc ultra

1шт.

Single Fan

1шт.

9b

9972

SEAL

hydraulic motor Ultra 19cc

1шт.

Single Fan

1шт.

9

9926

HYDRAULIC MOTOR

19cc ultra, Years: 01-OCT-04-01-MAY-09

1шт.

Dual Fan

1шт.

9a

425297A1

SEAL KIT

Danfoss 10,12,19 cc

1шт.

Dual Fan

1шт.

9b

9490

SEAL

hydraulic motor Danfoss 10,12,19cc

1шт.

Dual Fan

1шт.

9

9926

HYDRAULIC MOTOR

19cc ultra, Years: 01-OCT-04-01-MAY-09

1шт.

Single or Dual Fan

1шт.

9a

51200121

SEAL KIT

hydraulic motor 19cc ultra

1шт.

Single or Dual Fan

1шт.

9b

9972

SEAL

hydraulic motor Ultra 19cc

1шт.

Dual Fan

1шт.

9

87488819

HYDRAULIC MOTOR

Rexroth 19cc Ultra, Start Year: 01-MAY-09

1шт.

Dual Fan

1шт.

9

87488819R

REMAN-HYD MOTOR

Remanufactured Hydraulic Motor

1шт.

9

87488819C

CORE-MOTOR HYDRAULIC

Return Number, HYDRAULIC MOTOR

1шт.

9a

84217322

SEAL KIT

, Start Year: 01-MAY-09

1шт.

Dual Fan

1шт.

10

87500082

HYDRAULIC HOSE

3/4" x 84" fl

1шт.

Single or Dual Fan

1шт.

11

21395

FITTING

3/8" mpt x 1/4" mjic with .0313" orifice

2шт.

12

GL-700.32

DECAL

fan pressure

1шт.

13

76350

HYD CONNECTOR,9/16" - 18 ORB x 9/16" - 18 JIC

4шт.

15

218-5254

HYD CONNECTOR,3/4" - 16 ORB x 1/2" - 14 NPT

1шт.

Tow Between

1шт.

16

85999239

QUICK MALE COUPLING,3/8" x 3/4" - 16 ORB

stl 3/8"

1шт.

Tow Between

1шт.

16

9412

QUICK MALE COUPLING

1/2"

1шт.

Tow Behind

1шт.

17

85999239

QUICK MALE COUPLING,3/8" x 3/4" - 16 ORB

stl 3/8"

1шт.

20

87446686

HYDRAULIC HOSE

1/4" x 19" fl, 3/8" fjic x 1/4" fjic

2шт.

21

9846

HYDRAULIC HOSE

1/4" x 110" fl, 3/8" fjic x 3/8" fjic

1шт.

Tow Between

1шт.

21

9859

HYDRAULIC HOSE

1/4" x 69" fl, 3/8" fjic x 3/8" fjic

1шт.

Tow Behind

1шт.

22

GL-375

COVER

label 1" case drain hyd

1шт.

23

GL-700.42

DECAL

drain

1шт.

24

87500855

HYDRAULIC CYLINDER,Double Acting, 28.57mm Rod, 304.8mm Stroke

2" x 12" Monarch 2500 psi without pins

1шт.

Refer to 35.116.02

1шт.

25

GL-374

COVER

hydraulic hose label - 2"

1шт.

26

GL-700.33

DECAL

fan return

1шт.

27

128821

UNION,9/16" - 18 JIC x 9/16" - 18 JIC

1шт.

28

9895

FITTING

hydraulic swivel adapter 3/8" mpt x 3/8" fjic

1шт.

29

412764A1

HYDRAULIC VALVE,3/8" FPT x 3/8" FPT

ball 3/8" fpt

1шт.

30

235534

HYD CONNECTOR,9/16" - 18 JIC x 3/8" - 18 NPT

1шт.

31

1994568C1

COUPLING, QUICK, FEM

1/2" fpt

7шт.

32

87500079

HYDRAULIC HOSE

1/4" x 33" fl

1шт.

Tow Behind

1шт.

32

87500091

HYDRAULIC HOSE

1/4" x 188" fl

1шт.

Tow Between

1шт.

33

87506228

HYDRAULIC VALVE

1 spool

1шт.

34

86592083

DUST CAP

pioneer coupler - 1/2"

7шт.

35

21554

HYDRAULIC HOSE,12.7mm ID x 362mm L, SAE 100R2

1/2" x 362" fl, 1/2" mpt x 1/2" mpt

6шт.

36

9359

COUPLING, QUICK, FEM

1"

2шт.

38

21555

HYDRAULIC HOSE,25.4mm ID x 12319mm L, SAE 100R17

1" x 485" fl, 3/4" mpt x 1" mpt

2шт.

39

87500095

HYDRAULIC HOSE,19mm ID x 12319mm L

3/4" x 485" fl, 1/2" mpt x 1/2" mpt

1шт.

39

87500095

HYDRAULIC HOSE,19mm ID x 12319mm L

1/2" x 485" fl, 1/2" mpt x 1/2" mpt

1шт.

40

9360

PLUG

dust, pioneer coupler - 1"

1шт.

41

9412K

KIT

pioneer coupler - 1/2" male tip x 1/2" fpt

1шт.

Includes 9412 and 21668

1шт.

41

9412

QUICK MALE COUPLING

1/2"

1шт.

41

21668

REDUCER FITTING,1/2" - 14 Male NPT x 3/4" - 14 Female NPT

hydraulic 1/2" mpt x 3/4" fpt

1шт.

42

GL-372

COVER

hydraulic hose label - 1"

1шт.

43

GL-700.38

DECAL

wing lift pressure

1шт.

44

GL-700.39

DECAL

wing lift return

1шт.

45

GL-700.36

DECAL

depth pressure

1шт.

46

GL-700.37

DECAL

depth return

1шт.

47

GL-700.40

DECAL

auxiliary pressure

1шт.

48

GL-700.41

DECAL

auxiliary return

1шт.

49

87500077

HYDRAULIC HOSE,25.4mm ID x 6401mm L, SAE 100R17

1" x 252" fl

1шт.

Tow Behind

1шт.

49

87500090

HYDRAULIC HOSE,25.4mm ID x 4369mm L, SAE 100R17

1" x 172" fl

1шт.

Tow Between

1шт.

50

22515

HYDRAULIC HOSE

1/4" x 67" fl, 3/8" fjic x 3/8" fjic

1шт.

Выбрано товаров: 118