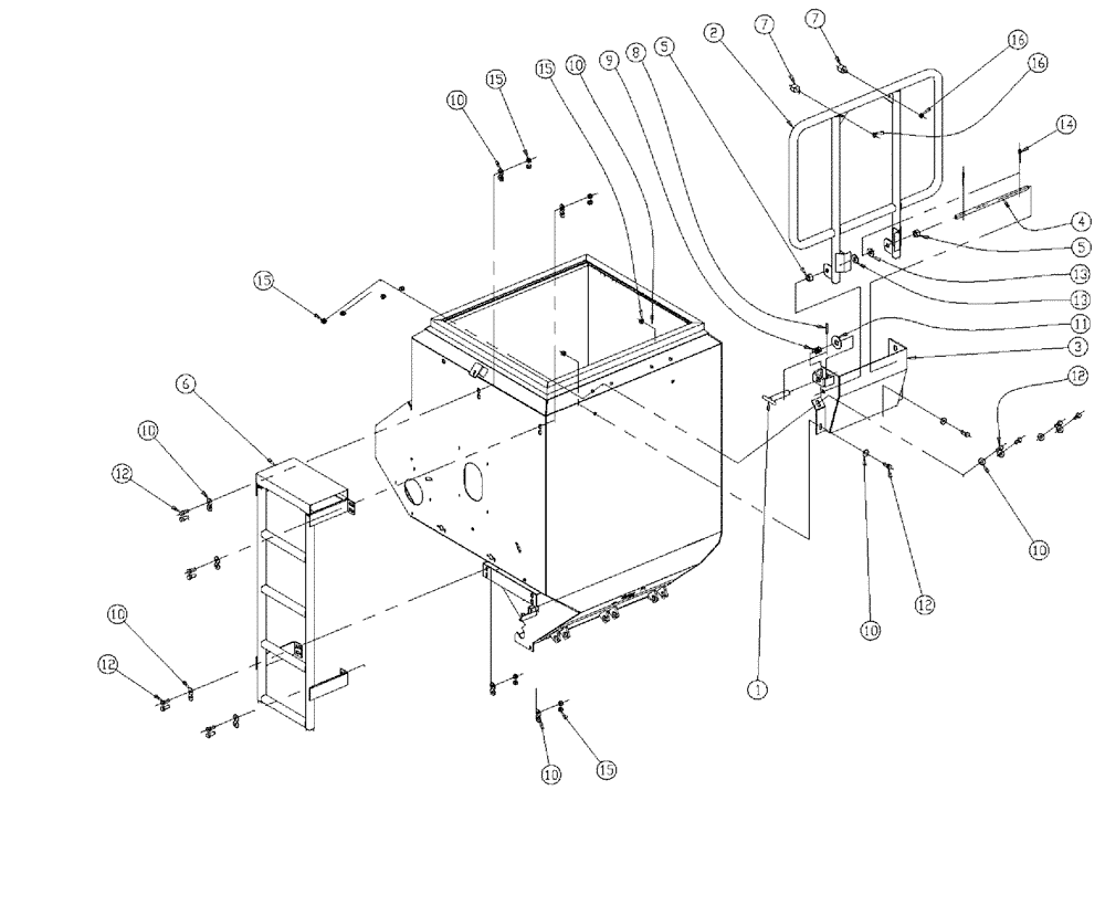
Запчасти Case IH 438 (03-014) - LADDER & HANDRAIL Bin Group

Схема запчастей Case IH 438 - (03-014) - LADDER & HANDRAIL Bin Group
10
10
8
2
11
14
5
16
9
10
1
12
15
13
3
16
10
5
10
7
10
7
12
15
15
6
12
4
13
12
15
10
FIT
1:1
100%

Артикул

Название

Примечание

Количество

1

BN5412

Pin - Locking MW

1шт.

2

BN308099

HANDRAIL

CO-AP Bin

1шт.

3

BN308100

SUPPORT

CO-AP Handrail

1шт.

4

BN308104

PIN

Handrail Pivot

1шт.

5

BN308105

BUSHING

CO-AP Handrail

2шт.

6

BN308122

LADDER

CO-AP Bin

1шт.

7

BN310002

BUMPER

2шт.

8

BN31444

PIN, ROLL

1/4 X 1-1/2

1шт.

9

BN31937

SPRING

Compression, .905 x .765

1шт.

10

BN50146

WASHER,3/8", Stainless

22шт.

11

BN50157

WASHER

3/4, G5

1шт.

12

BN50254

BOLT,3/8"-16 x 1", Stainless

14шт.

13

BN50595

WASHER,1/2", Stainless

2шт.

14

BN50602

COTTER PIN

1/8" X 1.25

2шт.

15

BN50759

LOCK NUT,3/8"-16, Nylon, Stainless

14шт.

16

BN55361

NUT,5/16"-18, Nylon, Stainless

2шт.

Выбрано товаров: 16