Качественные детали и логистика
Оригинальные и аналоговые запчасти с доставкой по России, Казахстану и Беларуси
©2022 PartSell ООО "Система" ИНН 2463123282 ОГРН 1212400004838
Центральный офис: г. Красноярск, Академика Киренского, д.87, пом.4
Телефон: 8 (800) 777-65-74 Email: zakaz@partsell.ru
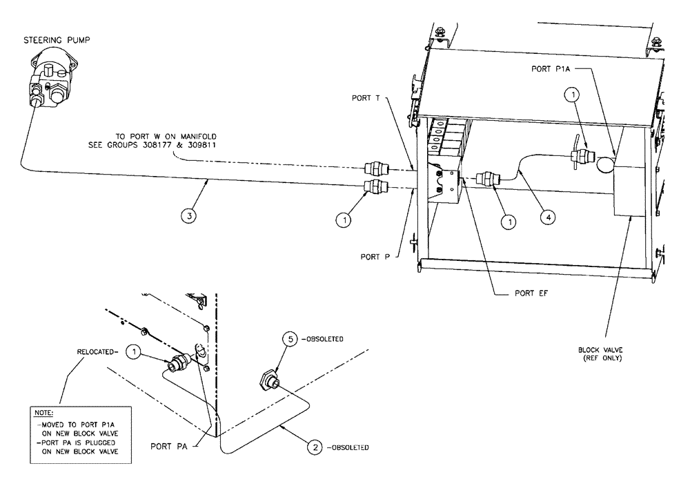
(06-010) - HYDRAULIC GROUP, SUPPLY, 3 WHEEL
№
Артикул
Название
Примечание
Количество
1
BN302655
FITTING
12MOR - 12MB
3шт.
3
BN320155
HOSE
Assembly, 12 X 102"
1шт.
4
BN318887
HOSE ASSY.
12 X 25"
Выбрано товаров: 0