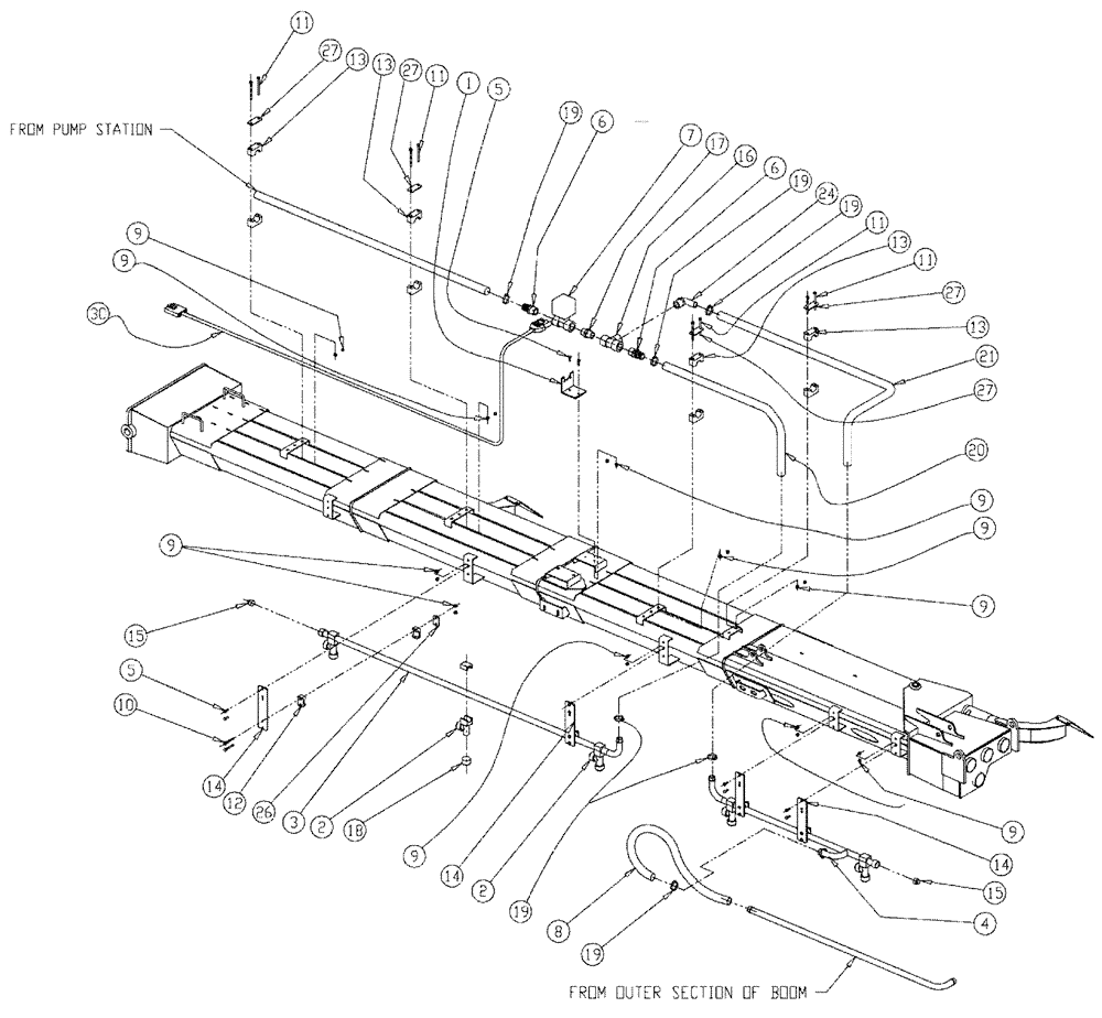
Запчасти Case IH 810 (10-008) - WET BOOM, 2.5", LH, INNER, 70 Wet Kit

Схема запчастей Case IH 810 - (10-008) - WET BOOM, 2.5", LH, INNER, 70 Wet Kit
4
27
27
11
14
16
13
27
20
19
3
18
26
14
11
9
17
2
19
1
10
9
12
13
19
27
15
9
21
8
11
13
9
7
19
14
11
5
6
15
13
2
24
30
6
5
9
9
19
9
9
FIT
1:1
100%

Артикул

Название

Примечание

Количество

1

BN24083

MOUNTING PLATE

7 GA HRS 3.0 x 5.75/2

1шт.

2

BN25237

NOZZLE

Nozzle (1 Way) 3/4" Pipe

5шт.

3

BN303268

BAR

SPRAY, INNER

1шт.

4

BN315384

BAR

Spray, INNER, END, LH, 70

1шт.

5

BN50212

BOLT,1/4"-20 x 3/4", Stainless Steel

10шт.

6

BN53476

FITTING,1" Male NPT x 1" Hose Barb, Poly

1" NPT x 1" Hose Barb, Poly

2шт.

7

87389559

VALVE

Electric, 1" Ball

1шт.

See Fig. 10-039

1шт.

8

BN53744

FLEXIBLE HOSE,1.00" ID x 65.00"

1шт.

9

BN55359

LOCK NUT,1/4"-20, SS

26шт.

10

BN55379

BOLT,1/4"-20 X 2-1/4", Stainless Steel

8шт.

11

BN55381

BOLT

1/4"-20 X 3-1/4", Stainless Steel

8шт.

12

BN65324

CLAMP

1" OD, Poly

4шт.

13

BN67494

CLAMP

Single, 1.5" DIA

4шт.

14

BN68981

BRACKET

Spraybar

4шт.

15

BN73553

PLUG

3/4" NPT, Poly

2шт.

16

BN73629

TEE

1" Poly Pipe

1шт.

17

BN73648

NIPPLE

1" Short Poly Pipe

1шт.

18

BN74619

CAP

W/GASKET TEE, JET BLK

5шт.

19

BN310447

HOSE CLAMP

#20, Stainless Steel

6шт.

20

BN53747

FLEXIBLE HOSE,1.00" ID x 48.00"

1шт.

21

BN53759

1" EPDM X 72.0"

1шт.

24

BN53475

ELBOW,90 Degree Elbow, 1" Male NPT x 1" Hose Barb, Poly

1" NPT x 1" Hose Barb, Poly

1шт.

26

BN311249

PLATE

TOP, SINGLE, SIZE 3

4шт.

27

BN309483

PLATE

Clamp Top, Single Clamp

4шт.

30

BN313987

WIRE HARNESS

BALL VALVE EXT.

1шт.

Выбрано товаров: 26