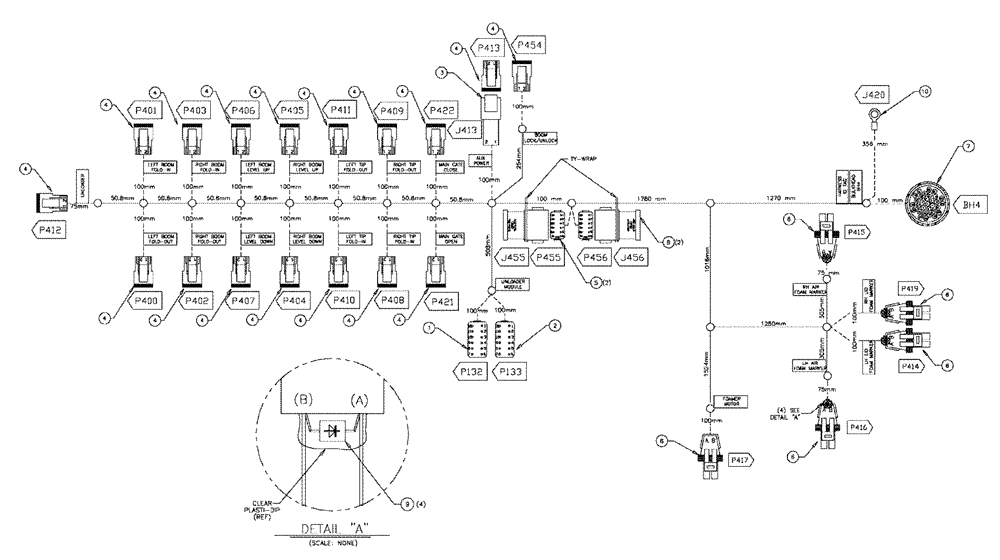
Запчасти Case IH 810 (13-010) - HARNESS, HYDRAULIC (06) - ELECTRICAL

Схема запчастей Case IH 810 - (13-010) - HARNESS, HYDRAULIC (06) - ELECTRICAL
4
4
4
7
4
4
8
6
4
4
4
4
4
4
8
4
4
4
4
2
1
5
6
6
4
10
4
3
6
9
FIT
1:1
100%

Артикул

Название

Примечание

Количество

0

87370727

WIRE HARNESS

HYDRAULIC

1шт.

Выбрано товаров: 1