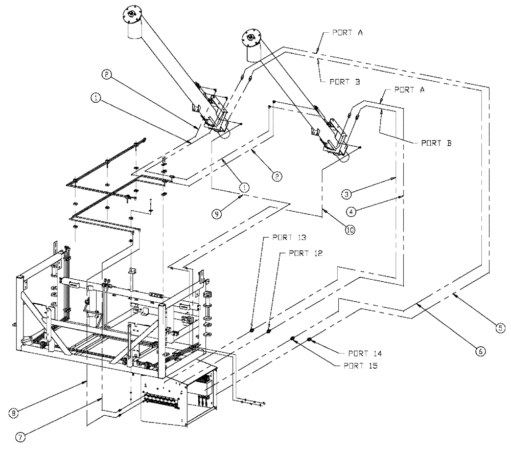
Запчасти Case IH 810 (02-044) - 6" AUGER HOSE GROUP, DOUBLE & TRIPLE BIN, 37 & 50 CU. FT. Bin Group

Схема запчастей Case IH 810 - (02-044) - 6" AUGER HOSE GROUP, DOUBLE & TRIPLE BIN, 37 & 50 CU. FT. Bin Group
10
9
5
7
1
1
4
2
2
3
6
8
FIT
1:1
100%

Артикул

Название

Примечание

Количество

1

BN309759

HOSE

04 X 22.50

2шт.

2

BN309760

HOSE

04 X 27.5

2шт.

3

BN311828

HOSE,86.00"

1шт.

4

BN311829

HOSE,69.00"

1шт.

5

BN311830

HOSE

12 X 113, 270'

1шт.

6

BN309764

HOSE

12 X 128, 315'

1шт.

7

BN309765

HOSE

04 X 20

1шт.

8

BN309975

HOSE

04 X 22.5

1шт.

9

BN311437

HOSE

GREASE, 87.0, SWIVEL

1шт.

10

BN311438

HOSE

GREASE, 69.0, SWIVEL

1шт.

Выбрано товаров: 10