Качественные детали и логистика
Оригинальные и аналоговые запчасти с доставкой по России, Казахстану и Беларуси
©2022 PartSell ООО "Система" ИНН 2463123282 ОГРН 1212400004838
Центральный офис: г. Красноярск, Академика Киренского, д.87, пом.4
Телефон: 8 (800) 777-65-74 Email: zakaz@partsell.ru
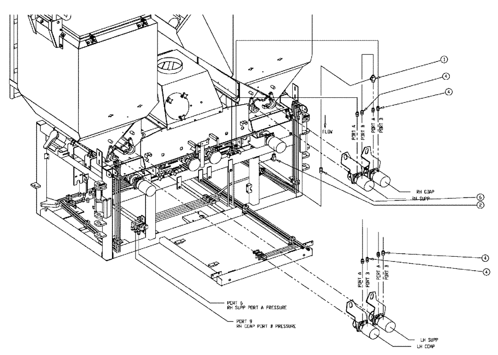
(02-049) - FITTING GROUP, TRIPLE BIN, 37 & 50 CU. FT.
№
Артикул
Название
Примечание
Количество
1
BN302436
TEE
13/16 -16 ORFS x 13/16 -16 ORFS Swivel
1шт.
2
BN302438
FITTING
12MOR-12MOR-12FORX
4
BN302651
8MOR 10MB
8шт.
6
129493A1
Inline Check Valve, 13/16"-16 ORFS x 13/16"-16 ORFS
Выбрано товаров: 0