Качественные детали и логистика
Оригинальные и аналоговые запчасти с доставкой по России, Казахстану и Беларуси
©2022 PartSell ООО "Система" ИНН 2463123282 ОГРН 1212400004838
Центральный офис: г. Красноярск, Академика Киренского, д.87, пом.4
Телефон: 8 (800) 777-65-74 Email: zakaz@partsell.ru
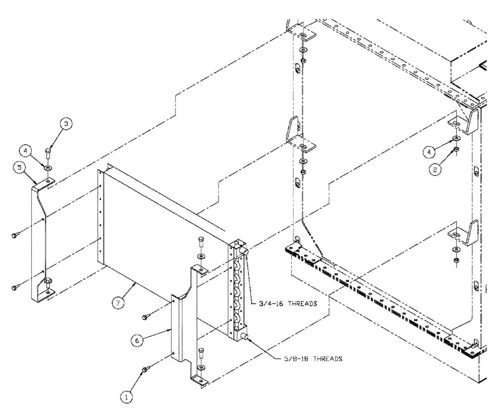
(01-010) - CONDENSOR GROUP (FLX3300B CAT ENGINE)
№
Артикул
Название
Примечание
Количество
1
276-14712
SELF-TAP SCREW,Hex Hd, 1/4" x 3/4"
4шт.
2
BN304419
NUT
M10-1.5, NLN, 10.9
3
BN300389
BOLT
Hex, M12 x 35, 8.8, Full Thd
4
BN300490
M10, FW, 8.8
8шт.
5
BN315243
A/C Condensor, CS
1шт.
6
BN315244
A/C Condensor, RS
7
BN67785
CONDENSER
Coil
Выбрано товаров: 0