Запчасти Case IH FLX3300B (10-003) - REAR FENDER GROUP, 66" Options

Схема запчастей Case IH FLX3300B - (10-003) - REAR FENDER GROUP, 66" Options
6
4
12
7
15
5
1
7
14
7
9
6
6
1
6
13
5
8
12
3
2
11
FIT
1:1
100%

Артикул

Название

Примечание

Количество

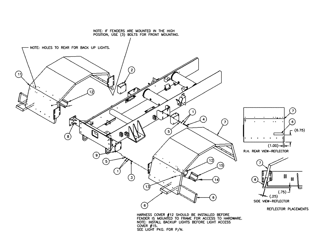
1

BN300500

WASHER,M12, 10.9

32шт.

2

86986651

SPACER

Fender Mount (4")

2шт.

3

9706702

BOLT,Hex, M12 x 1.75 x 50mm, Cl 8.8

8шт.

4

385427

BOLT,Hex, M12 x 1.75 x 150mm, Cl 8.8

8шт.

5

100038

NUT,M12 x 1.75, Cl 8

16шт.

6

311863A1

REFLECTOR

Retroreflective Red

4шт.

7

86986012

FENDER

RH, SS, 66"

1шт.

8

BN318873

MOUNTING PLATE

L.H., R-Fender

1шт.

9

BN318875

MOUNTING PLATE

R.H., R-Fender

1шт.

11

86986013

FENDER

LH, SS, 66"

1шт.

12

86986020

COVER

Backup Light Harness

2шт.

13

BN50205

BOLT

1/4"-20 x .625, TH, SS, Philips

24шт.

14

BN50052

LOCK NUT,1/4"-20, USR, SS

24шт.

15

86986656

COVER

Access-Light

2шт.

Выбрано товаров: 14