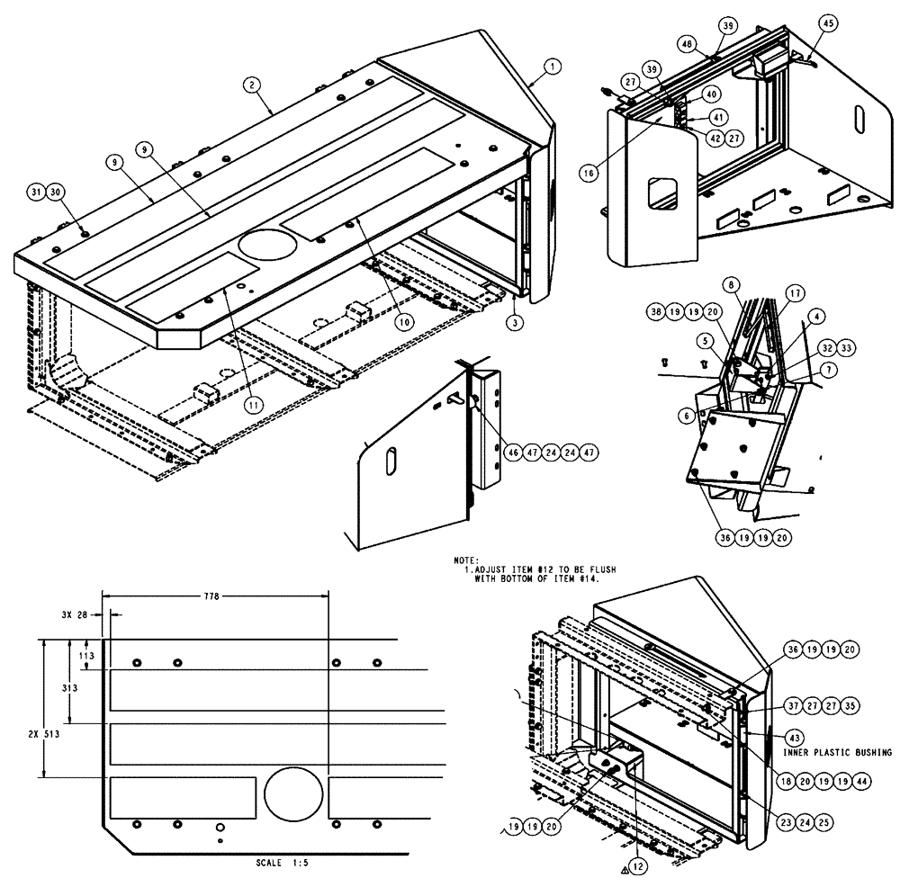
Запчасти Case IH FLX3510 (04-013) - WALKWAY GROUP, CS Frame & Suspension

Схема запчастей Case IH FLX3510 - (04-013) - WALKWAY GROUP, CS Frame & Suspension
39
36
47
27
46
20
5
6
40
19
32
4
45
35
17
19
25
38
43
20
31
36
19
41
19
27
9
10
19
20
39
24
48
8
23
24
9
19
7
27
30
33
47
18
19
3
11
1
2
12
19
37
19
20
44
27
20
27
16
42
19
FIT
1:1
100%

Артикул

Название

Примечание

Количество

1

87265530

TOOL BOX

Front, CS

1шт.

2

87267028

PLATE

Top Fuel Tank

1шт.

3

87265535

MOUNTING PLATE

Battery Box

1шт.

4

87268834

LATCH

Battery Box

1шт.

5

343356A1

BRACKET, SUPPORTING

Mount, Pin

1шт.

6

728-16100

CLEVIS PIN,M16 x 100

1шт.

7

BN1630425

PIN, SPLIT (COTTER)

PIN, COTTER 1/8 X 1

1шт.

8

87265547

ROD

Door Stop

1шт.

9

87266040

WALKWAY

CATWALK Safety, Deck Plate

2шт.

10

87266041

WALKWAY

CATWALK Safety, Deck Plate

1шт.

11

87266042

WALKWAY

CATWALK Safety, Deck Plate

1шт.

12

87268832

MOUNTING PLATE

Door Support

1шт.

13

86980407

BOLT,Hex, M10 x 70mm, Cl 8.8

M10-1.5 X 70, 8.8, DOR

1шт.

14

87268827

ROLLER

Plastic

1шт.

16

87266691

MOUNTING PLATE

Battery Cables

1шт.

17

87266589

FOAM

Battery Cable, Plate

1шт.

18

87266592

SUPPORT

Rod

1шт.

19

87529312

WASHER,11mm ID x 24mm OD x 3mm Thk

28шт.

20

86980515

NUT,Hex, M10 x 1.5, Cl 8.8, DOR

14шт.

23

86980432

BOLT,Hex, M12 x 120mm, Cl 8.8

M12-1.75 X 120, 8.8, DOR

2шт.

24

86981496

WASHER,13.3mm ID x 24.5mm OD x 3mm Thk

4шт.

25

100038

NUT,M12 x 1.75, Cl 8

2шт.

27

87529315

WASHER,9mm ID x 17mm OD x 2mm Thk

9 x 17 x 2 mm, HDN, DOR

8шт.

30

BN50146

WASHER,3/8", Stainless

12шт.

31

BN322388

SCREW,Hex, M10 x 1.5 x 30mm, SST

M10-1.5 X 30, HH, SS

12шт.

32

87342591

BOLT

Hex, 1/4"-20 x 1 1/2", G5, Full Thd

4шт.

33

87343957

NUT,1/4" - 20

Hex, 1/4"-20, GB

4шт.

35

9991588

NUT,M8 x 1.25, Cl 8

2шт.

36

86980401

BOLT,Hex, M10 x 1.5 x 30mm, Cl 8.8, Full Thd

10шт.

37

86980380

BOLT,Hex, M8 x 1.25 x 25mm, Cl 8.8, Full Thd

2шт.

38

86980400

BOLT,Hex, M10 x 25mm, Cl 8.8, Full Thd

2шт.

39

BN71006

COTTER PIN

1/8", #11

2шт.

40

87266692

PIPE CLAMP

Dual, 16MM

3шт.

41

BN311653

PLATE

Top, Dual, Size 2

3шт.

42

86980383

BOLT,Hex, M8 x 40mm, Cl 8.8

3шт.

43

86986835

TUBE,12.10 mm ID x 20.40 mm OD x 78 mm L

Side Front

2шт.

44

87344209

NUT,M10 x 1.5, Cl 10, DOR

1шт.

45

BN30670

SPRING

Spring-3/8" OD X 2" (304 SS)

1шт.

46

342650A1

BUMPER

Rubber

1шт.

47

87343666

NUT

Hex, 1/2"-13, G5

2шт.

48

86981677

WASHER,11mm ID x 30mm OD x 2.5mm Thk

1шт.

Выбрано товаров: 41