Запчасти Case IH FLX4510 (08-002) - FRAME ELECTRICAL GROUP (06) - ELECTRICAL

Схема запчастей Case IH FLX4510 - (08-002) - FRAME ELECTRICAL GROUP (06) - ELECTRICAL
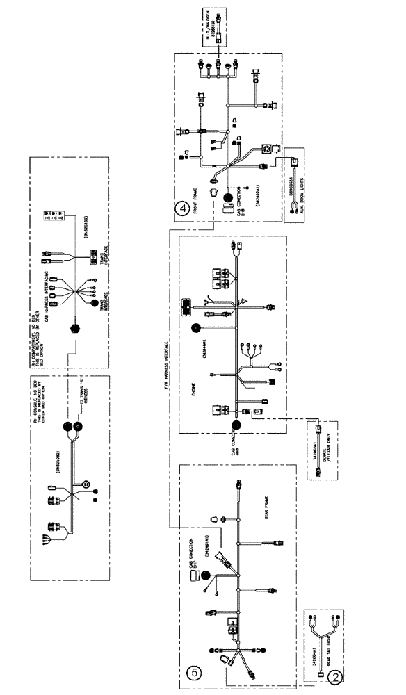
5
4
2
FIT
1:1
100%

Артикул

Название

Примечание

Количество

86980360

BOLT,Hex, M6 x 1 x 20mm, Cl 8.8, Full Thd

Not Shown

2шт.

86980513

NUT,Prev Torque, Hex, M6, 1mm Pitch, Cl 8, DOR

Not Shown

2шт.

343944A1

WIRE HARNESS

Engine, 547

1шт.

2

87269427

WIRE HARNESS

EXT, Rear Lights

1шт.

NSS

NOT SOLD SEPARAT

Speed Sensor Group

1шт.

See Fig. 08-003

1шт.

4

87265760

WIRE HARNESS

Front Frame, Start Serial: 6700

1шт.

See Fig. 08-010

1шт.

87266543

WIRE HARNESS

Front Frame, 547

1шт.

Indicates Old Part Number Or Can Order Newer Part Number Listed Above

1шт.

5

87265759

WIRE HARNESS

Rear Frame, Start Serial: 6700

1шт.

See Fig. 08-009

1шт.

87266544

WIRE HARNESS

Rear Frame, 547

1шт.

Indicates Old Part Number Or Can Order Newer Part Number Listed Above

1шт.

BN323590

HARNESS

Back-Up, Not Shown

1шт.

178149A1

SOLENOID SWITCH

Kit, With Barrier, Not Shown, Starter Relay

1шт.

120100

BOLT,M6 x 20mm, Cl 8.8

Not Shown

2шт.

353308

NUT,M6 x 1.0, Cl 8

Not Shown

2шт.

86624182

WASHER,6.6mm ID x 18mm OD x 1.6mm Thk

Not Shown

4шт.

342190A1

DECAL

Bulkhead Callout, Not Shown

1шт.

Выбрано товаров: 20