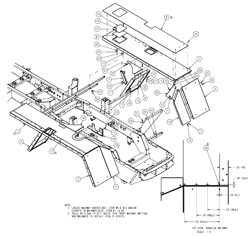
Запчасти Case IH FLX4510 (04-017) - WALKWAY GROUP Frame & Suspension

Схема запчастей Case IH FLX4510 - (04-017) - WALKWAY GROUP Frame & Suspension
11
11
24
12
11
11
18
21
11
11
10
3
17
13
9
1
21
12
12
21
21
23
11
12
8
2
16
7
11
21
12
4
24
22
14
6
12
22
25
22
26
25
21
11
20
5
15
22
23
22
21
19
21
FIT
1:1
100%

Артикул

Название

Примечание

Количество

1

342878A1

EXTENSION

walkway, RS

1шт.

2

342879A1

WALKWAY

CATWALK walkway, CS

1шт.

3

342884A1

PLATE

FR splash CS

1шт.

4

342883A1

PLATE

FR splash RS

1шт.

5

342949A1

PLATE

RR splash CS

1шт.

6

342948A1

PLATE

RR splash RS

1шт.

7

343807A1

SUPPORT

Brace, Rear Splash Plate

2шт.

8

344095A1

COVER

hydraulic filter access

1шт.

9

344360A1

MAT

Walkway RS

1шт.

10

344359A1

MAT

Oil Tank Cover

1шт.

11

86624184

WASHER,9mm ID x 16mm OD x 1.6mm Thk

34шт.

12

120104

BOLT,Hex, M8 x 1.25 x 20mm, Cl 8.8

23шт.

13

344361A1

MAT

Walkway CS

1шт.

14

86986696

GUARD

Exhaust Pipe

1шт.

15

342960A1

PANEL

Rear Filler, RS

1шт.

16

342951A1

PANEL

Rear Filler, CS

1шт.

17

343812A1

PANEL

Front Filler, CS

1шт.

18

342950A1

PANEL

Front Filler, CS

1шт.

19

343811A1

PANEL

Front Filler, RS

1шт.

20

342959A1

PANEL

Front Filler, RS

1шт.

21

86639325

WASHER,10.8mm ID x 24.5mm OD x 3mm Thk

44шт.

22

11106231

BOLT,Hex, M10 x 1.5 x 25mm, Cl 10.9

28шт.

23

86528579

NUT,M8 x 1.25

11шт.

24

100037

LOCK NUT,M10 x 1.5, Cl 8

12шт.

25

BN2394894

RIVET

Pop 97525A032 3/16X

8шт.

26

43140

BOLT,Hex, M10 x 1.5 x 30mm, Cl 8.8

4шт.

Выбрано товаров: 26