Качественные детали и логистика
Оригинальные и аналоговые запчасти с доставкой по России, Казахстану и Беларуси
©2022 PartSell ООО "Система" ИНН 2463123282 ОГРН 1212400004838
Центральный офис: г. Красноярск, Академика Киренского, д.87, пом.4
Телефон: 8 (800) 777-65-74 Email: zakaz@partsell.ru
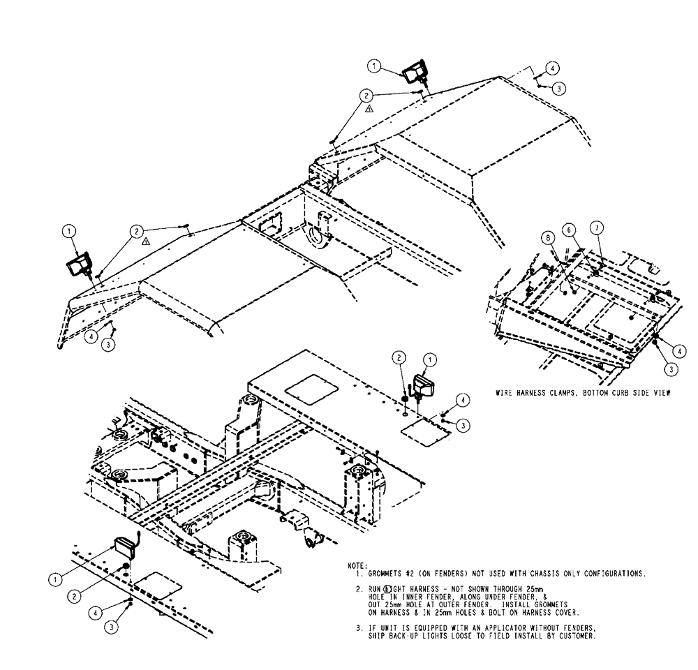
(10-011) - LIGHT GROUP, AUX/ BACK UP
№
Артикул
Название
Примечание
Количество
1
BN324749
LAMP
Assembly, 35W Flood, 3 X 5
4шт.
92242C2
BULB,H3, 12V, 35W
H3-35W, 12V
Service Parts For Ref. 1
1шт.
2
BN85855
GROMMET
2870 (7/8" Hole)
6шт.
3
100037
LOCK NUT,M10 x 1.5, Cl 8
4
BN325184
WASHER
3/8, FW, SS, Heavy, Special #MS815
6
853765
CLAMP,7.9mm, Coat, 10.3mm Bolt Hole, P Type
8шт.
7
16043224
BOLT,Hex, M8 x 16mm, Cl 8.8
8
86528579
NUT,M8 x 1.25
Выбрано товаров: 0