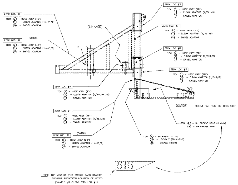
Запчасти Case IH 610 (03-002) - BOOM GREASE BANK GROUP (09) - BOOMS

Схема запчастей Case IH 610 - (03-002) - BOOM GREASE BANK GROUP (09) - BOOMS
14
1
11
10
2
13
2
14
14
5
7
14
14
13
15
5
14
14
14
9
11
1
12
1
3
1
2
14
8
6
1
12
FIT
1:1
100%

Артикул

Название

Примечание

Количество

1

BN35810

HOSE,0.13" ID x 16.00", SAE 100R7

Grease

4шт.

2

BN316482

HOSE,0.13" ID x 40.00", SAE 100R7

GREASE, 1/8" X 40"

6шт.

3

BN316481

HOSE,0.13" ID x 23.00", SAE 100R7

GREASE, 1/8" X 23"

2шт.

4

BN316480

HOSE,0.13" ID x 8.00", SAE 100R7

GREASE, 1/8" X 8"

2шт.

5

BN35808

HOSE,0.13" ID x 30.00", SAE 100R7

Grease, 30"

2шт.

6

BN35809

HOSE,0.13" ID x 20.00", SAE 100R7

Grease

2шт.

7

BN316483

BRACKET

R.H. GREASE BANK

1шт.

8

BN316484

BRACKET

L.H. GREASE BANK

1шт.

9

BN35805

ADAPTER

str 1/8 npsm-nptf

18шт.

10

BN53570

BHD LOCK NUT

18шт.

11

BN316475

ELBOW

BODY-90 DEG.

10шт.

12

BN316494

ELBOW

BODY-90 DEG.

6шт.

13

BN311142

ELBOW

BODY-90 DEG.

2шт.

14

BN316478

ADAPTER

SWIVEL

18шт.

15

BN10451

LUBE NIPPLE

1/4"-28 45º

18шт.

Выбрано товаров: 15