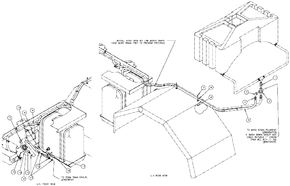
Запчасти Case IH 610 (05-013) - FOAM/FRESH WATER FILL Liquid Plumbing

Схема запчастей Case IH 610 - (05-013) - FOAM/FRESH WATER FILL Liquid Plumbing
14
13
2
17
1
15
3
8
6
8
7
3
4
11
9
10
5
16
4
12
FIT
1:1
100%

Артикул

Название

Примечание

Количество

1

BN73648

NIPPLE

1" Short Poly Pipe

1шт.

2

BN53663

COUPLING

Cross, 1" FPT, Poly

1шт.

3

BN53475

ELBOW,90 Degree Elbow, 1" Male NPT x 1" Hose Barb, Poly

1" NPT x 1" Hose Barb, Poly

2шт.

4

BN75990

HOSE CLAMP

#16, Stainless Steel

2шт.

5

BN2393068

TUBE

1" Suction Style K

14шт.

6

515-23333

CLAMP,1 5/16", Insul, 3/8" Bolt

2шт.

7

120104

BOLT,Hex, M8 x 1.25 x 20mm, Cl 8.8

2шт.

8

86528579

NUT,M8 x 1.25

4шт.

9

BN2395215

HYDRAULIC VALVE

Ball 1" Poly

1шт.

10

87271278

MOUNTING PLATE

BALL VALVE

1шт.

11

43127

BOLT,Hex, M8 x 1.25 x 25mm, Cl 8.8

2шт.

12

BN53666

FITTING

STR, 1.0MP.75HB, PP

1шт.

13

BN310446

HOSE CLAMP

#12, Stainless Steel

3шт.

14

BN52310

TUBE,0.75" ID

Wall Vinyl

1шт.

15

BN73561

FITTING

STR, .75HB.75HB, PP

2шт.

16

BN73560

TEE

.75FP, PP

1шт.

17

BN73565

NIPPLE,3/4" Male NPT x 3/4" Male NPT, Poly

3/4" Short Pipe, Poly

1шт.

Выбрано товаров: 0