Запчасти Case IH FLX610 (05-014) - WASH DOWN HYDRAULIC GROUP Liquid Plumbing

Схема запчастей Case IH FLX610 - (05-014) - WASH DOWN HYDRAULIC GROUP Liquid Plumbing
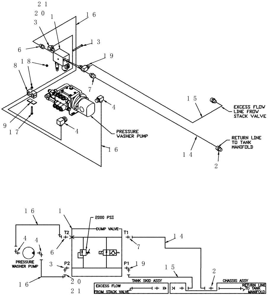
16
4
6
20
1
13
19
16
1
15
3
8
18
16
2
17
7
14
4
20
21
14
21
4
2
4
7
9
6
16
19
3
15
FIT
1:1
100%

Артикул

Название

Примечание

Количество

1

87271740

VALVE SECTION

Product - With Deutsch, Start Serial: 20114

1шт.

1

BN29970

MANIFOLD

Solenoid & Relief Valve

1шт.

Indicates Old Part Number or Can Order Newer Part Number Listed above

1шт.

1a

BN98239

VALVE PRESSURE RELIE

RELIEF, 1500PSI

1шт.

Service Parts for Ref. 1

1шт.

1b

BN95744

CARTRIDGE

Solenoid Valve

1шт.

Service Parts for Ref. 1

1шт.

1c

BN95745

COIL

solenoid valve

1шт.

Service Parts for Ref. 1

1шт.

1d

BN95961

SEAL KIT

RELIEF CART. 95741

1шт.

Service Parts for Ref. 1

1шт.

2

201-109

HYD CONNECTOR,1-3/16" - 12 ORFS x 1-3/16" - 12 ORFS

12MOR-12MOR

1шт.

3

BN302558

ELBOW

8 MOR 8MB X 90

2шт.

4

BN302559

FITTING

8MOR-10MBX90

2шт.

6

BN302650

FITTING

13/16 -16 ORFS x 3/4 -16 ORB

1шт.

7

BN302654

FITTING

12MOR-8MB

1шт.

8

BN307913

CLAMP

DUAL, 1/2 PIPE

1шт.

9

BN309484

PLATE

DUAL, SIZE 3

1шт.

13

BN320109

BOLT,5/16"-18 X 3.50", Stainless

1шт.

14

BN316055

HOSE

12 x 1905 mm

1шт.

15

87267865

HOSE

12 x 85"

1шт.

16

BN313282

HOSE

8 X 30

2шт.

17

BN50241

BOLT,5/16"-18 X 2-1/4", Stainless Steel

1шт.

18

BN55361

NUT,5/16"-18, Nylon, Stainless

2шт.

19

BN302566

FITTING

12MOR-08MBX90

1шт.

20

87265621

ORIFICE

.091"- 8 Disk

1шт.

21

BN305413

O-RING,0.07" Thk x 0.489" ID, -14, Cl 6, 90 Duro

FOR-8 FFOR

1шт.

Выбрано товаров: 27