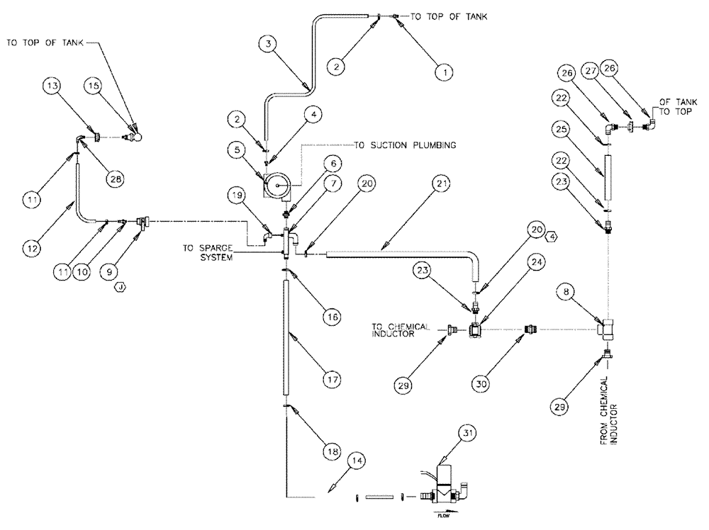
Запчасти Case IH 3150 (09-004) - PRESSURE PLUMBING, SPHERICAL Liquid Plumbing

Схема запчастей Case IH 3150 - (09-004) - PRESSURE PLUMBING, SPHERICAL Liquid Plumbing
20
13
22
12
5
14
15
26
1
28
3
27
26
17
4
30
21
11
10
24
22
29
16
29
2
9
20
25
8
19
23
18
7
11
2
31
23
6
FIT
1:1
100%

Артикул

Название

Примечание

Количество

1

BN53433

FITTING

1/4" NPT x 1/4" Hose Barb, Stainless Steel

1шт.

2

87485000

CLAMP,0.25" - 0.62"

#4, Stainless Steel

2шт.

3

BN65280

HOSE,6.35mm ID x 3479.8mm L

.25 x 137.00 EPDM

1шт.

4

BN72040

FITTING,1/8" MPT x 1/4" HB

Hose Barb, 1/8" NPT x 1/4" ID HS

1шт.

5

BN53670

HYDROSTATIC PUMP

Complete Product Pump

1шт.

See Fig. 09-001

1шт.

BN53670R

REMAN-HYDROSTAT PUMP

3150 (6/04 - 5/09)

1шт.

BN53670C

CORE-HYDROSTAT PUMP

Return Number

1шт.

6

BN73270

NIPPLE

Close 1.25 NPT SS

1шт.

7

BN29958

MANIFOLD

Liq. Product 770

1шт.

8

BN73714

TEE,1-1/2" Female NPT x 1-1/2" Female NPT x 1-1/2" Female NPT, Poly

1-1/2" NPT, Poly

1шт.

9

BN324588

VALVE

Ball 3/4" SU Poly

1шт.

10

BN73561

FITTING

BARB, 3/4 NPT X 3/4 HS

1шт.

11

BN310446

HOSE CLAMP

#12, Stainless Steel

2шт.

12

BN53931

HOSE,130.00"

1шт.

13

406148A1

FITTING

bulkhead 3/4" dfpt c/w epdm gasket

1шт.

14

87377607

HYDROMETER

Flow Group, With Deutsch Connector, Start Serial: 20614

1шт.

See Fig. 09-021

1шт.

87265850

HYDROMETER

Raven RFM-55, With Deutsch

1шт.

Indicates Old Part Number or Can Order Newer Part Number Listed above

1шт.

87378188

REPAIR KIT

Raven RFM60 Flow Meter With Adaptor Harness

1шт.

Indicates Old Part Number or Can Order Newer Part Number Listed above

1шт.

15

343509A1

JET

NOZZLE, Rinse (360) With Adapter

1шт.

16

BN53810

HOSE CLAMP

1.75" ID "T" BOLT

1шт.

18

87485002

CLAMP,1.06" - 2"

24 2.0/1.06 F SST 300

1шт.

19

BN73566

ELBOW,3/4" Male NPT x 3/4" Female NPT, Poly

90, Street, 3/4" Poly

1шт.

20

BN53811

CLAMP

2" ID, T-bolt

2шт.

21

BN65282

HOSE

1.50 x 30.00 EPDM

1шт.

22

87485001

CLAMP,1.31" - 2.25"

#28, Stainless Steel

2шт.

23

413083A1

PIPE FITTING,1-1/2" Male Thread x 1-1/2" Hose Barb

Hose Barb, 1 1/2"

2шт.

24

BN69410

VALVE,3/8-16 Banjo Bolt X 20MM Long Zinc Plt.

3-way, 1.5" Black

1шт.

25

BN301617

1.5" EPDM X 100"

1шт.

26

BN73723

ELBOW,90 Degree Elbow, 1-1/2" Male NPT x 1-1/2" Hose Barb, Poly

1-1/2" NPT x 1-1/2" Hose Barb, Poly

2шт.

27

BN73733

FITTING

1 1/2" Bulkhead

1шт.

28

BN73562

FITTING,3/4" Male Thread x 3/4" 90 Degree Hose Barb

3/4" NPT x 3/4" Hose Barb, 90°

1шт.

29

BN73731

PLUG,1-1/2" Male NPT, Poly

1 1/2" Poly Pipe

2шт.

30

BN73715

NIPPLE,1-1/2" Short Poly Nipple

1 1/2" Short Poly

1шт.

31

NS

NOT SERVICED

Group, Flow Control (Raven)

1шт.

See Fig. 09-005

1шт.

Выбрано товаров: 39