Запчасти Case IH 3230 (39.105.09) - INNER BOOM, 90/100 BOOM (39) - FRAMES AND BALLASTING

Схема запчастей Case IH 3230 - (39.105.09) - INNER BOOM, 90/100 BOOM (39) - FRAMES AND BALLASTING
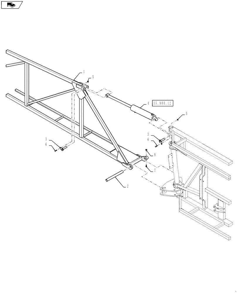
5
6
2
4
35.900.12
3
home
5
6
7
3
8
1
FIT
1:1
100%

Артикул

Название

Примечание

Количество

1

BN326077

FRAME

Inner Sec, LH

1шт.

1

BN326099

FRAME

Inner Sec, RH

1шт.

Not Shown

1шт.

2

BN326079

PIN,38.1mm OD x 408.94mm L

BOOM PIVOT

1шт.

3

BN305621

PIN

2шт.

4

87266461

CYLINDER ASSY.,Double Acting, 38.1mm Rod, 533.4mm Stroke

Hydraulic, 3.00 x 21 x 1.50

1шт.

Refer to 35.900.12

1шт.

4

87266461R

REMAN-HYD CYLINDER

3230 PATRIOT SPRAYER, Hydraulic (7/09-)

1шт.

4

87266461C

CORE-HYD CYLINDER

Return Number

1шт.

5

86980515

NUT,Hex, M10 x 1.5, Cl 8.8, DOR

2шт.

6

86980402

BOLT,Hex, M10 x 1.5 x 35mm, Cl 8.8, Full Thd

2шт.

7

87342784

BOLT

Hex, 3/8"-16 x 3 1/2", G5

1шт.

8

87343970

NUT,3/8"-16, G8, DOR

1шт.

Выбрано товаров: 0