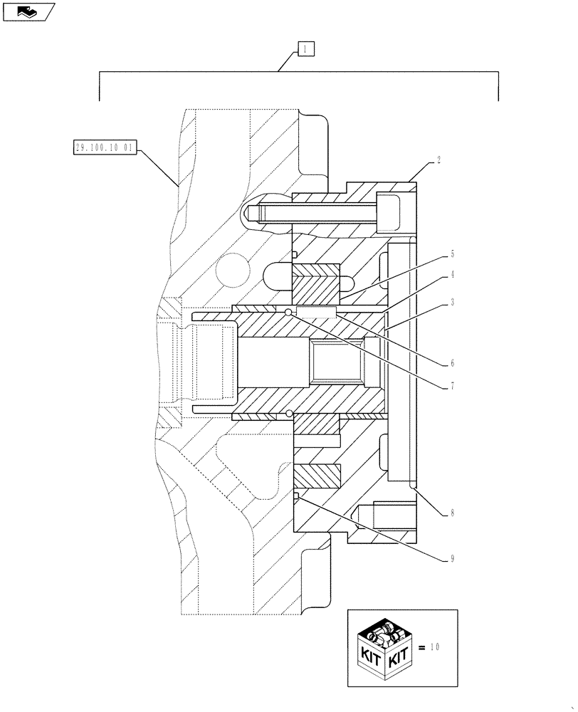
Запчасти Case IH 3330 (29.100.10[08]) - HYDROSTATIC PUMP, INTERNAL GEAR ASSEMBLY, BSN YCT032640 (29) - HYDROSTATIC DRIVE

Схема запчастей Case IH 3330 - (29.100.10[08]) - HYDROSTATIC PUMP, INTERNAL GEAR ASSEMBLY, BSN YCT032640 (29) - HYDROSTATIC DRIVE
6
29.100.10 01
8
5
3
1
2
7
10
home
4
9
FIT
1:1
100%

Артикул

Название

Примечание

Количество

1

87601555

PUMP

Internal Gear Pump Assembly, Includes Ref 2 - 10

1шт.

2

87673450

FLANGE

SAE B

1шт.

3

87601637

SHAFT

Through-Drive

1шт.

4

87601550

BUSHING

Bushing

1шт.

5

NSS

NOT SOLD SEPARAT

1шт.

6

87601552

KEY

Drive Shaft

1шт.

7

87601553

SNAP RING

Drive Shaft

1шт.

8

84254610

RING

Quad

1шт.

9

272310

O-RING,0.07" Thk x 3.239" ID, -42, Cl 5, 75 Duro

1шт.

10

87758211

SEAL KIT

Internal Gear Pump

1шт.

Выбрано товаров: 0