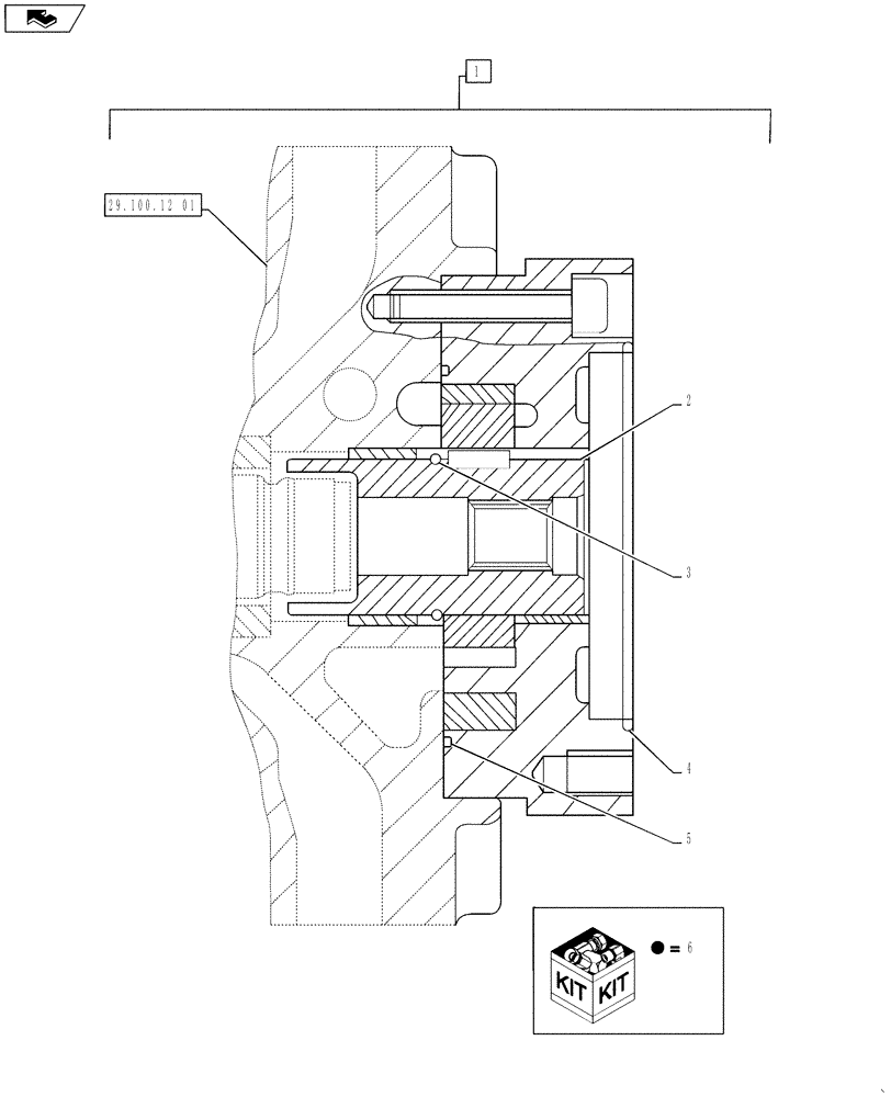
Запчасти Case IH 3330 (29.100.12[08]) - LH HYDROSTATIC PUMP, INTERNAL GEAR ASSEMBLY, SN YCT032640 AND AFTER (29) - HYDROSTATIC DRIVE

Схема запчастей Case IH 3330 - (29.100.12[08]) - LH HYDROSTATIC PUMP, INTERNAL GEAR ASSEMBLY, SN YCT032640 AND AFTER (29) - HYDROSTATIC DRIVE
6
1
2
3
5
29.100.12 01
home
4
6
FIT
1:1
100%

Артикул

Название

Примечание

Количество

1

84416331

HYDRAULIC PUMP

Internal Gear Pump Assembly, Includes Ref 2 - 6 And All Parts On Fig 29.100.12(09)

1шт.

1

84416331R

REMAN-HYD PUMP

3330 PATRIOT SPRAYER, INTERNAL GEAR PUMP ASSEMBLY, LH, SN YCT032640 AND AFTER (11/08)

1шт.

1

84416331C

CORE-HYDRAULIC PUMP

Return Number

1шт.

2

87601550

BUSHING

Bushing

1шт.

3

87601553

SNAP RING

Drive Shaft

1шт.

4

84254610

RING

Quad

1шт.

5

272310

O-RING,0.07" Thk x 3.239" ID, -42, Cl 5, 75 Duro

1шт.

6

84579672

SEAL KIT

Internal Gear Pump

1шт.

Выбрано товаров: 0