Запчасти Case IH 3330 (55.440.22) - AIM COMMAND, ELECTRICAL GROUP, PWM (55) - ELECTRICAL SYSTEMS

Схема запчастей Case IH 3330 - (55.440.22) - AIM COMMAND, ELECTRICAL GROUP, PWM (55) - ELECTRICAL SYSTEMS
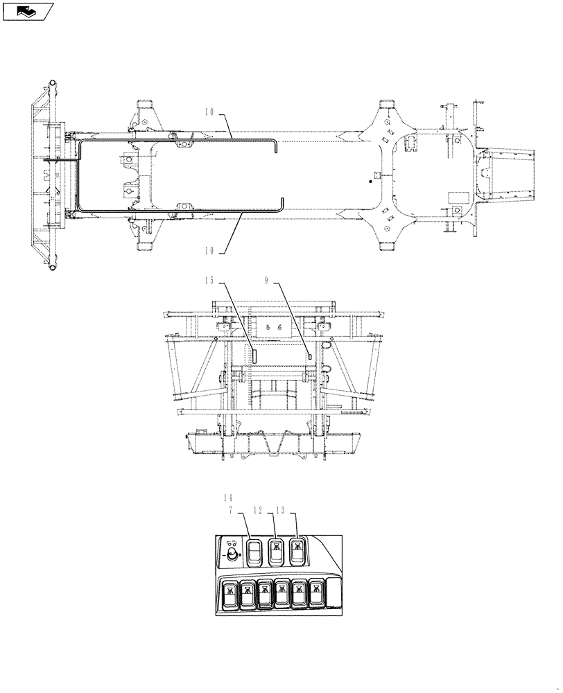
15
7
home
10
12
13
10
9
14
FIT
1:1
100%

Артикул

Название

Примечание

Количество

1

NSS

NOT SOLD SEPARAT

B VALVE ISOLATORS

1шт.

Refer to 55.440.28

1шт.

2

515-24444

CLAMP,44.4mm ID, 11.9mm Bolt Hole, P Type

1шт.

Not Shown

1шт.

3

86980379

BOLT,Hex, M8 x 1.25 x 20mm, Cl 8.8

4шт.

Not Shown

1шт.

4

86980400

BOLT,Hex, M10 x 25mm, Cl 8.8, Full Thd

8шт.

Not Shown

1шт.

5

9991588

NUT,M8 x 1.25, Cl 8

4шт.

Not Shown

1шт.

6

86980515

NUT,Hex, M10 x 1.5, Cl 8.8, DOR

9шт.

Not Shown

1шт.

7

87270709

SWITCH

NGR, ON-OFF-ON

1шт.

8

87271089

BRACKET, SUPPORTING

AIM CMD, Rear

1шт.

Not Shown

1шт.

9

87271580

SENSOR

pressure aim command

1шт.

10

87630216

HARNESS

aim command, rear

1шт.

Refer to 55.100.06

1шт.

11

87529312

WASHER,11mm ID x 24mm OD x 3mm Thk

1шт.

Not Shown

1шт.

12

BN321908

SWITCH

AIM, CMD PRES ADJ

1шт.

13

BN321909

PRESSURE SWITCH

AIM, CMD PRES SET

1шт.

14

BN322921

SWITCH

rocker aim command system

1шт.

15

NSS

NOT SOLD SEPARAT

AIM, CMD BY-PASS

1шт.

Refer to 55.440.26

1шт.

Выбрано товаров: 25