Запчасти Case IH 3330 (75.130.12[01]) - NOZZLE SPACING GROUP, 5 SECTION, 20" OFF, CENTER SECTION (75) - SOIL PREPARATION

Схема запчастей Case IH 3330 - (75.130.12[01]) - NOZZLE SPACING GROUP, 5 SECTION, 20" OFF, CENTER SECTION (75) - SOIL PREPARATION
9
8
home
4
7
3
7
6
2
9
5
1
FIT
1:1
100%

Артикул

Название

Примечание

Количество

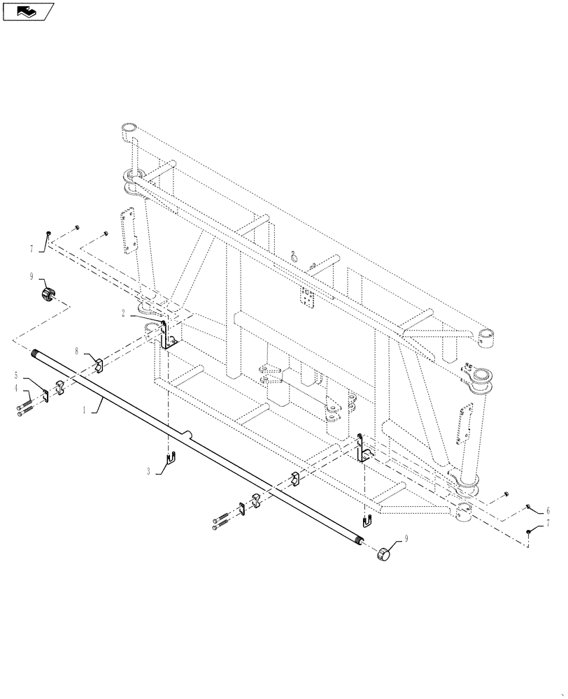
1

87266668

PIPE,105" Long, 6 Holes, 20" Nozzle Spacing

Spraybar, 6 Nozzles, 20" Nozzle Spacing, Stainless Steel, 105" Long

1шт.

2

BN323965

BOOM

MOUNT, WDMT, SPRAY BAR

2шт.

3

BN319918

U-BOLT,SQ BND 1.31" ID x 3/8"

BOLT "U" Square Bend 3/8"-16 x 1.31 wide x 2.00 Deep

2шт.

4

BN55381

BOLT

1/4"-20 X 3-1/4", Stainless Steel

4шт.

5

BN309483

PLATE

Clamp Top, Single Clamp

2шт.

6

BN50759

LOCK NUT,3/8"-16, Nylon, Stainless

4шт.

7

BN55359

LOCK NUT,1/4"-20, SS

4шт.

8

BN67054

CLAMP

1.315" OD

2шт.

9

BN21618

CAP

1.25"

2шт.

Выбрано товаров: 9