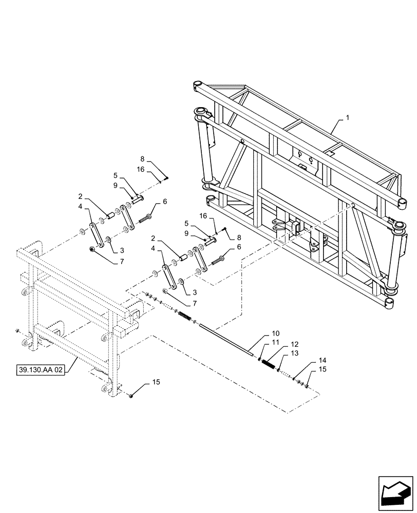
Запчасти Case IH 4430 (39.130.03) - CENTER SECTION MAST, 90/100 BOOM (39) - FRAMES AND BALLASTING

Схема запчастей Case IH 4430 - (39.130.03) - CENTER SECTION MAST, 90/100 BOOM (39) - FRAMES AND BALLASTING
5
3
1
6
12
2
7
9
7
15
3
4
5
8
6
39.130.aa 02
10
16
8
14
4
2
9
15
11
13
16
FIT
1:1
100%

Артикул

Название

Примечание

Количество

1

87272748

FRAMEWORK

Center Section, 90/100' Boom

1шт.

2

BN308003

BUSHING

Hanger

2шт.

3

87529124

WASHER,1.06" ID x 2.5" OD x 0.17" Thk

1.062 x 2.50 x .165 CST, DOR

12шт.

4

BN29505

HANGER

Center Boom, Bracket

4шт.

5

BN306785

PIN

Hanger

2шт.

6

47919309

BOLT

1" - 8, Gr 8, DOR

2шт.

7

87343900

SLOTTED NUT

1" - 8, Gr 5, DOR

4шт.

8

87315279

BOLT,Hex, M10 x 35mm, Cl 10.9

2шт.

9

87344003

NUT,M10-1.5, 10, DOR

M10 x 1.5, Cl 8

2шт.

10

BN306783

SHAFT

Center Boom Hanger, Threaded 1"

1шт.

11

896-16024

WASHER,26mm ID x 56mm OD x 6mm Thk

4шт.

12

BN27328

SPRING

Compression, 1.75" od x11"

2шт.

13

BN306784

TUBE

Spacer, Hanger

2шт.

14

87529311

WASHER,26mm ID x 44mm OD x 5mm Thk

26 x 44 x 5 mm, HDN, DOR

2шт.

15

87343879

JAM NUT

1-8, Gr 5, DOR

8шт.

16

87529312

WASHER,11mm ID x 24mm OD x 3mm Thk

2шт.

Выбрано товаров: 16