Качественные детали и логистика
Оригинальные и аналоговые запчасти с доставкой по России, Казахстану и Беларуси
©2022 PartSell ООО "Система" ИНН 2463123282 ОГРН 1212400004838
Центральный офис: г. Красноярск, Академика Киренского, д.87, пом.4
Телефон: 8 (800) 777-65-74 Email: zakaz@partsell.ru
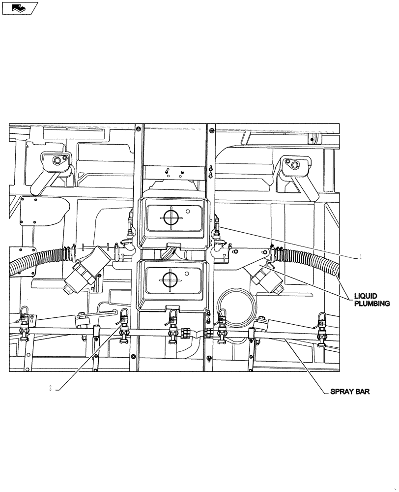
(55.414.04) - BOOM PRESSURE SENSOR, 7 SECTION BOOM
№
Артикул
Название
Примечание
Количество
1
84201517
TRANSDUCER
Boom Pressure Sensor
1шт.
2
86986400
SWITCH
Boom Pressure Switch
Выбрано товаров: 0