Запчасти Case IH PATRIOT 2250 (78.110.AE[04]) - BOOM PLUMBING, RH, INNER, 20" NOZZLE SPACING, 5 SECTION, 80, BSN YGT042519 (78) - SPRAYING

Схема запчастей Case IH PATRIOT 2250 - (78.110.AE[04]) - BOOM PLUMBING, RH, INNER, 20" NOZZLE SPACING, 5 SECTION, 80, BSN YGT042519 (78) - SPRAYING
39.130.ab 02
20
25
27
4
19
12
13
2
5
21
26
1
29
6
28
16
14
15
21
30
24
17
8
10
17
7
9
18
22
23
11
3
78.110.ae 05
78.110.ae 03
FIT
1:1
100%

Артикул

Название

Примечание

Количество

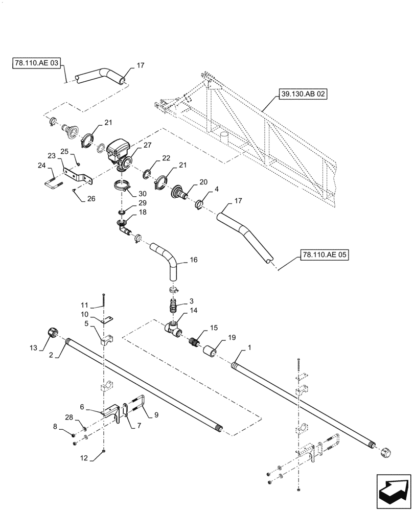
1

87452553

PIPE

Spraybar, Poly, SCH 80, 9 Hole, 20" Spacing, 14' - 2 1/2" Long

1шт.

2

87452551

PIPE

Spraybar, Poly, SCH 80, 6 Hole, 20" Spacing, 9' - 2 1/2" Long

1шт.

3

BN53476

FITTING,1" Male NPT x 1" Hose Barb, Poly

1шт.

4

BN75990

HOSE CLAMP

SST, # 16

4шт.

5

BN67054

CLAMP

Includes Top and Bottom Halves

7шт.

6

47614661

MOUNT

Spraybar

14шт.

7

BN308039

PLATE

Spacer

14шт.

8

86980515

NUT,Hex, M10 x 1.5, Cl 8.8, DOR

28шт.

9

47650282

U-BOLT

3 3/16" x 2 3/8"

14шт.

10

BN309483

PLATE

Cover

14шт.

11

86980369

BOLT,Hex, M6 x 80, Cl 8.8

DOR

28шт.

12

86980513

NUT,Prev Torque, Hex, M6, 1mm Pitch, Cl 8, DOR

28шт.

13

BN73606

CAP

Poly, 1"

2шт.

14

BN73629

TEE

Poly, 1", FPT

1шт.

15

BN73648

NIPPLE

Poly, 1", Short

1шт.

16

BN53479

HOSE,1.00" ID BULK

EPDM, Cut to Length Required

1шт.

17

BN29563

HOSE

EPDM, Bulk, Cut to Length Required

1шт.

18

BN303194

ELBOW,90 Degree Elbow, 1" Flange x 1" Hose Barb, Poly

1шт.

19

BN66968

COUPLING

Poly, 1"

1шт.

20

BN306900

FITTING,2" Flange x 1-1/4" Hose Barb, Poly

2шт.

21

BN303199

CLAMP,2" Flange

2шт.

22

BN303204

GASKET,1-1/2" EPDM Gasket

2" Flange, EPDM

2шт.

23

87265462

MOUNTING PARTS

Valve

1шт.

24

BN319919

U-BOLT

3/8"

1шт.

25

BN50759

LOCK NUT,3/8"-16, Nylon, Stainless

2шт.

26

BN50697

BOLT,Hex, 1/4" - 20 x 1/2", SST

2шт.

27

87632830

SHUT-OFF VALVE

2" Flange, Complete

1шт.

See 78.110.AB 01 For Service Parts

1шт.

28

87529312

WASHER,11mm ID x 24mm OD x 3mm Thk

28шт.

29

BN303205

GASKET

1" Flange

1шт.

30

BN303203

CLAMP,1" Flange

1" Flange

1шт.

Выбрано товаров: 0