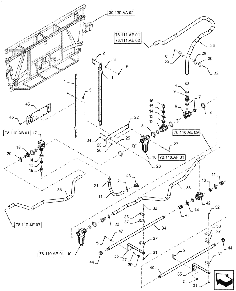
Запчасти Case IH PATRIOT 2250 (78.110.AE[08]) - BOOM PLUMBING, CENTER, 20"/30" NOZZLE SPACING, 5 SECTION, 80, ASN YGT042518 (78) - SPRAYING

Схема запчастей Case IH PATRIOT 2250 - (78.110.AE[08]) - BOOM PLUMBING, CENTER, 20"/30" NOZZLE SPACING, 5 SECTION, 80, ASN YGT042518 (78) - SPRAYING
39.130.aa 02
41
15
39
37
37
36
7
22
29
36
20
8
2
45
47
5
18
32
25
6
1
40
43
8
24
28
32
3
9
5
33
4
14
31
37
13
10
14
1
31
27
11
31
2
29
38
13
41
20
13
35
35
12
16
19
5
5
33
42
34
23
17
21
30
10
44
26
14
47
32
44
21
46
37
78.111.ae 02
78.110.ae 07
78.110.ae 09
78.110.ap 01
78.110.ap 01
78.110.ab 01
78.111.ae 01
FIT
1:1
100%

Артикул

Название

Примечание

Количество

1

84328987

SUPPORT

Plumbing

2шт.

2

87586548

U-BOLT

M10, 2 1/2" x 2 1/2"

4шт.

3

87529298

WASHER,11mm ID x 21mm OD x 2mm Thk

DOR

8шт.

4

BN310448

HOSE CLAMP

# 28, SST

4шт.

5

86980515

NUT,Hex, M10 x 1.5, Cl 8.8, DOR

12шт.

6

BN303196

TEE,2" Flange x 2" Flange x 2" Flange, Poly

1шт.

7

47888705

GASKET

2" Flange

8шт.

8

BN303199

CLAMP,2" Flange

8шт.

9

BN306901

FITTING,2" Flange x 1-1/2" Hose Barb, Poly

1шт.

10

87265489

FILTER STRAINER

2" Flange, Complete

2шт.

See 78.110.AP[01] For Servce Parts

1шт.

11

BN53479

HOSE,1.00" ID BULK

EPDM, Cut o Length Required

1шт.

12

BN303191

TEE,2" Flange x 2" Flange x 1" Flange, Poly

1шт.

13

47888704

GASKET,28mm ID x 52mm OD x 5.6mm Thk

1" Flange, EPDM

6шт.

14

BN303203

CLAMP,1" Flange

1" Flange

6шт.

15

BN324133

PLUG,1" Flange x 1/4" Female NPT, Poly

1шт.

16

84201517

TRANSDUCER

Pressure

1шт.

17

87632830

SHUT-OFF VALVE

2" Flange, Complete

1шт.

See 78.110.AB 01 For Service Parts

1шт.

18

BN306900

FITTING,2" Flange x 1-1/4" Hose Barb, Poly

3шт.

19

BN304319

FITTING,1" Flange x 1" Hose Barb, Poly

1шт.

20

BN320156

HOSE CLAMP

# 24, SST

4шт.

21

BN310447

HOSE CLAMP

# 20, SST

6шт.

22

84328989

MOUNT

Manifold

1шт.

23

BN50138

WASHER,1/4", SS

2шт.

24

BN50697

BOLT,Hex, 1/4" - 20 x 1/2", SST

2шт.

25

87529315

WASHER,9mm ID x 17mm OD x 2mm Thk

DOR

12шт.

26

86980514

LOCK NUT,Hex, M8, Cl 8, DOR

6шт.

27

86980394

BOLT,Hex, M8 -1.25 x 140mm, Cl 8.8, DOR

4шт.

28

86980379

BOLT,Hex, M8 x 1.25 x 20mm, Cl 8.8

2шт.

29

87480824

CLAMP

Includes Top and Bottom Halves

1шт.

30

409811

COVER

Plate

1шт.

31

86980513

NUT,Prev Torque, Hex, M6, 1mm Pitch, Cl 8, DOR

16шт.

32

86980369

BOLT,Hex, M6 x 80, Cl 8.8

DOR

16шт.

33

BN29563

HOSE

1 1/4", EPDM, Bulk, Cut to Length Required

1шт.

34

47937785

PIPE

Spraybar, 4 Hole, 20/30" Spacing, 54" Long, SCH 80, Poly

1шт.

35

47958719

MOUNT

Spraybar, Center

6шт.

36

BN309483

PLATE

Cover

6шт.

37

BN67054

CLAMP

Includes Top and Bottom Halves

6шт.

38

BN53621

HOSE,1.50" ID BULK

EPDM, Cut to Length Required

1шт.

39

86980400

BOLT,Hex, M10 x 25mm, Cl 8.8, Full Thd

4шт.

40

47937599

PIPE

Spraybar, 5 Hole, 20/30" Spacing, 64" Long, SCH 80, Poly

1шт.

41

47804854

FITTING,1" Flange x 1" Pipe Thread

1" Flange to Spraybar

2шт.

42

BN304316

FITTING,1" Flange x 1" Flange x 1" Flange, Poly

1шт.

43

BN303194

ELBOW,90 Degree Elbow, 1" Flange x 1" Hose Barb, Poly

1шт.

44

BN73606

CAP

Spraybar, 1" NPT, Poly

2шт.

45

84385241

MOUNT

Valve-Nodes

1шт.

46

86980401

BOLT,Hex, M10 x 1.5 x 30mm, Cl 8.8, Full Thd

4шт.

47

87529312

WASHER,11mm ID x 24mm OD x 3mm Thk

32шт.

Выбрано товаров: 49