Запчасти Case IH PATRIOT 3340 (39.130.AB[04]) - RH INNER BOOM, 90/100 BOOM (39) - FRAMES AND BALLASTING

Схема запчастей Case IH PATRIOT 3340 - (39.130.AB[04]) - RH INNER BOOM, 90/100 BOOM (39) - FRAMES AND BALLASTING
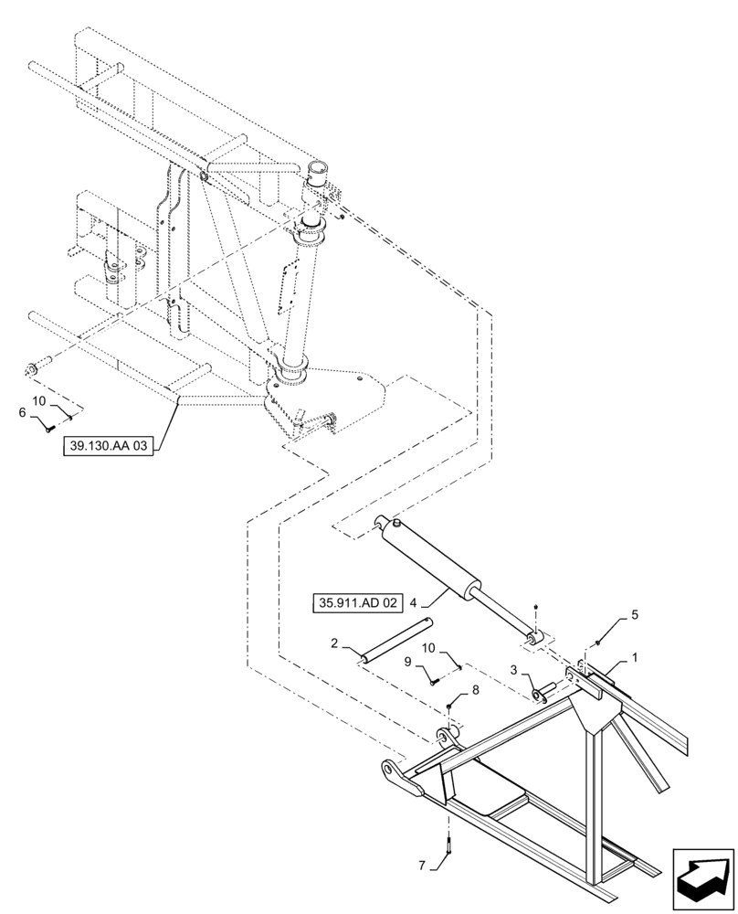
4
35.911.ad 02
5
3
10
2
7
10
6
8
9
1
39.130.aa 03
FIT
1:1
100%

Артикул

Название

Примечание

Количество

1

84559058

BOOM

Inner Boom Section, RH

1шт.

2

BN326079

PIN,38.1mm OD x 408.94mm L

Boom Pivot

1шт.

3

BN305621

PIN

Boom Level Cylinder

2шт.

4

87266461

CYLINDER ASSY.,Double Acting, 38.1mm Rod, 533.4mm Stroke

Boom Level, 3.00 x 21 x 1.50

1шт.

4

87266461R

REMAN-HYD CYLINDER

Reman

1шт.

4

87266461C

CORE-HYD CYLINDER

Return Number

1шт.

5

86980515

NUT,Hex, M10 x 1.5, Cl 8.8, DOR

2шт.

6

86980402

BOLT,Hex, M10 x 1.5 x 35mm, Cl 8.8, Full Thd

2шт.

7

87342784

BOLT

3/8-16 x 3 1/2", G5

1шт.

8

87343970

NUT,3/8"-16, G8, DOR

1шт.

9

86980403

BOLT,Hex, M10 x 1.5 x 40mm, Cl 8.8, Full Thd

1шт.

10

87529312

WASHER,11mm ID x 24mm OD x 3mm Thk

2шт.

Выбрано товаров: 12