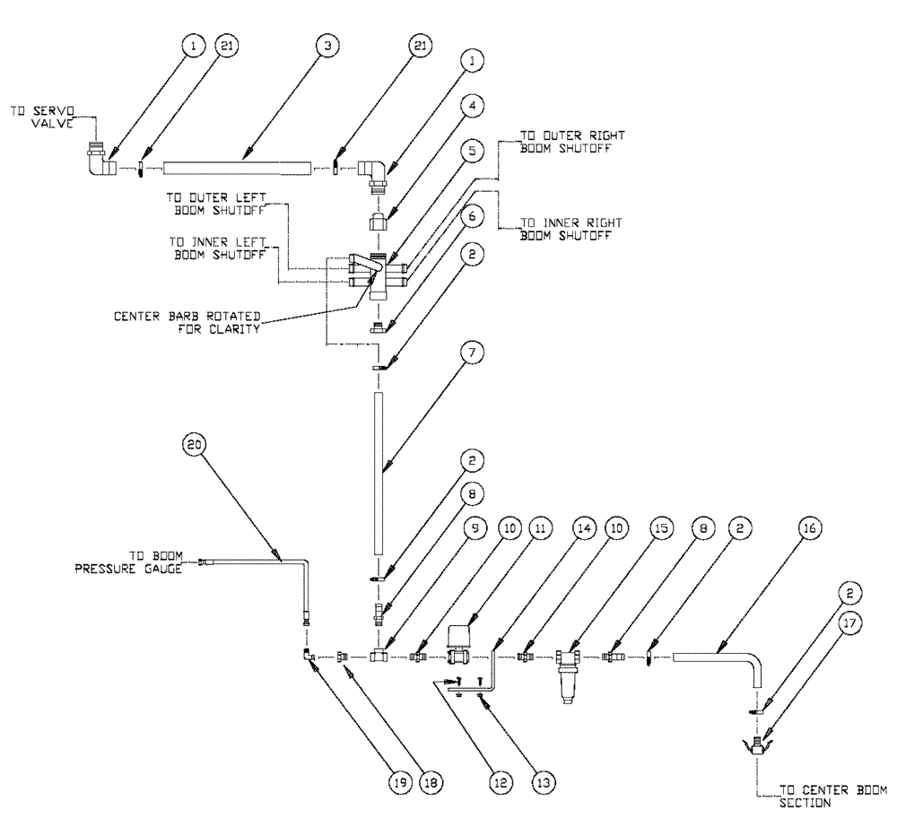
Запчасти Case IH SPX2130 (09-004) - 60, 5 BOOM SHUT OFF, CENTER BOOM Liquid Plumbing

Схема запчастей Case IH SPX2130 - (09-004) - 60, 5 BOOM SHUT OFF, CENTER BOOM Liquid Plumbing
21
10
15
4
20
11
12
9
8
3
16
2
2
13
8
1
19
2
2
7
14
18
6
21
5
17
10
1
FIT
1:1
100%

Артикул

Название

Примечание

Количество

1

BN73663

ELBOW,90 Degree Elbow, 1-1/4" Male NPT x 1-1/4" Hose Barb, Poly

1-1/4" NPT x 1-1/4" Hose Barb, 90°, Poly

2шт.

2

BN75990

HOSE CLAMP

#16, Stainless Steel

4шт.

3

BN53930

HOSE,68.00"

1шт.

4

BN69960

REDUCER,1-1/2" x 1-1/4" Poly Reducing Coupling

1.5-1.25

1шт.

5

BN24776

MANIFOLD

5-Way 1.5" Outlet

1шт.

6

BN73731

PLUG,1-1/2" Male NPT, Poly

1 1/2" Poly Pipe

1шт.

7

BN53756

HOSE,42.00"

1шт.

8

BN53476

FITTING,1" Male NPT x 1" Hose Barb, Poly

1" NPT x 1" Hose Barb, Poly

2шт.

9

BN73629

TEE

1" Poly Pipe

1шт.

10

BN73648

NIPPLE

1" Short Poly Pipe

2шт.

11

87389559

VALVE

Electric, 1" Ball

1шт.

11a

BN53495

VALVE

PP-Ball (2-Way) Ele

1шт.

Parts Of Terminal Cover Assembly., P/N "69620"

1шт.

12

BN50211

BOLT

1/4"-20 x .75, HH, G5

2шт.

13

BN50051

NUT,1/4"-20, USR

2шт.

14

BN24083

MOUNTING PLATE

7 GA HRS 3.0 x 5.75/2

1шт.

15

BN73681

FILTER STRAINER

Assembly 1"-50 Mesh

1шт.

15a

BN73679

FILTER STRAINER

SCREEN, 50 MESH

1шт.

15b

84222934

SCREEN,80 Mesh Screen

80 MESH

1шт.

16

BN53743

FLEXIBLE HOSE,1.00" ID x 33.00"

1шт.

17

BN53668

COUPLING

1" Female, HS SHK

1шт.

18

BN2390261

REDUCER

Bushing - 1" x 1 /4"

1шт.

19

BN53734

ELBOW

FT, 90° 1/4" NPT x 9/16" JIC

1шт.

20

BN25893

HOSE

3/8" x 300" EPDM

1шт.

21

BN76084

HOSE CLAMP

Adj. #24, SS

2шт.

Выбрано товаров: 25