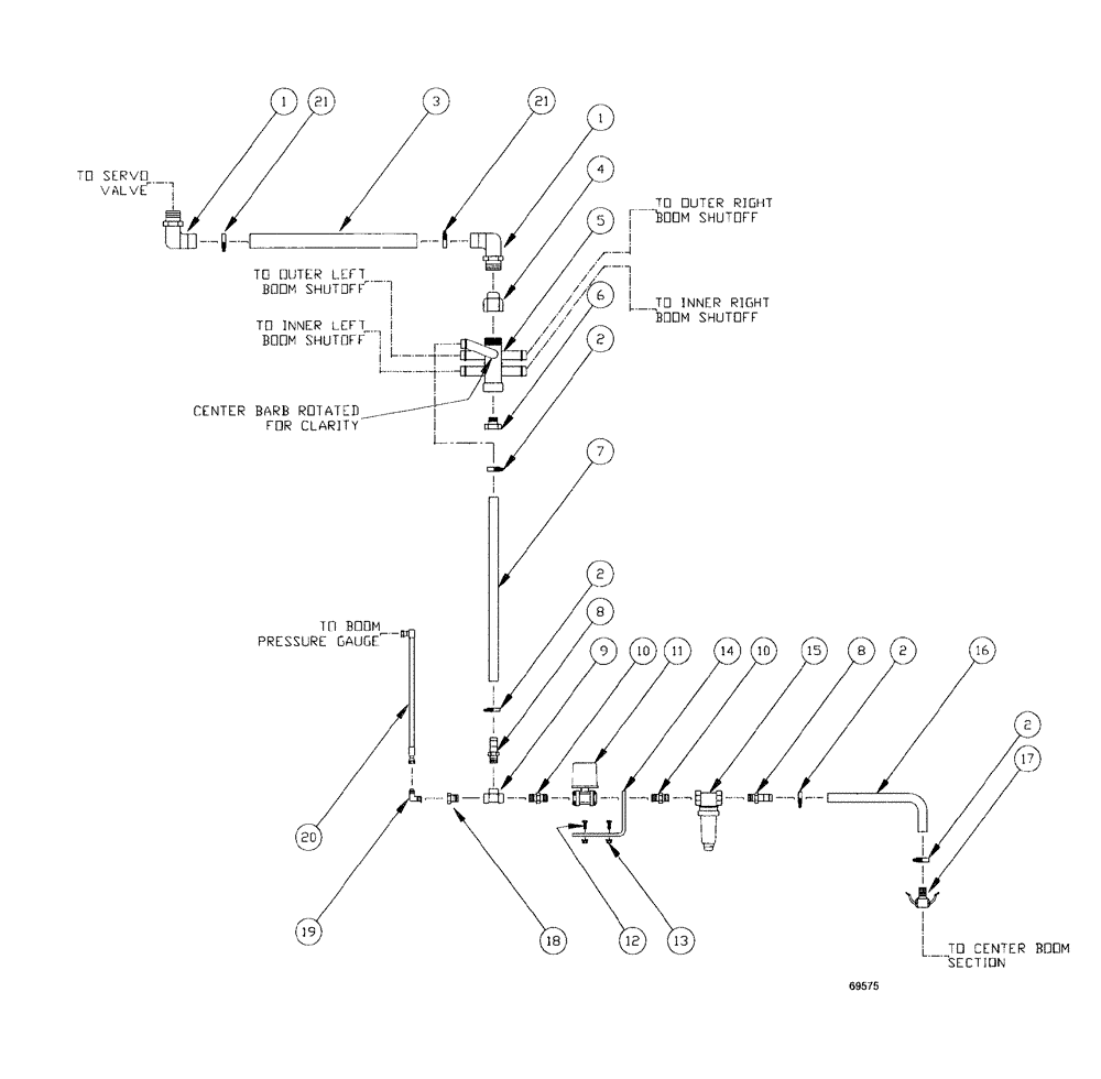
Запчасти Case IH SPX3185 (226) - LIQUID PLUMBING, 75 5-BOOM SHUTOFF CENTER BOOM (78) - SPRAYING

Схема запчастей Case IH SPX3185 - (226) - LIQUID PLUMBING, 75 5-BOOM SHUTOFF CENTER BOOM (78) - SPRAYING
21
7
10
17
2
9
11
5
8
8
10
15
14
3
18
20
4
2
2
19
21
13
6
1
1
16
2
12
FIT
1:1
100%

Артикул

Название

Примечание

Количество

1

BN73663

ELBOW,90 Degree Elbow, 1-1/4" Male NPT x 1-1/4" Hose Barb, Poly

1-1/4" NPT x 1-1/4" Hose Barb, 90°, Poly

1шт.

2

BN75990

HOSE CLAMP

#16, Stainless Steel

4шт.

3

BN53887

HOSE,84.00"

1шт.

4

BN69960

REDUCER,1-1/2" x 1-1/4" Poly Reducing Coupling

COUPLING 1.5-1.25

1шт.

5

BN24776

MANIFOLD

5-Way 1.5" Outlet

1шт.

6

BN73731

PLUG,1-1/2" Male NPT, Poly

1 1/2" Poly Pipe

1шт.

7

BN69393

HOSE

1" EPDM X 58"

1шт.

8

BN53476

FITTING,1" Male NPT x 1" Hose Barb, Poly

1" NPT x 1" Hose Barb, Poly

2шт.

9

BN73629

TEE

1" Poly Pipe

1шт.

10

BN73648

NIPPLE

1" Short Poly Pipe

2шт.

11

87389559

VALVE

Electric, 1" Ball

1шт.

12

BN50211

BOLT

1/4"-20 x .75, HH, G5, PL

2шт.

13

BN50051

NUT,1/4"-20, USR

2шт.

14

BN24083

MOUNTING PLATE

7 GA HRS 3.0 x 5.75/2

1шт.

15

BN73681

FILTER STRAINER

1", 50 mesh

1шт.

15a

BN73679

FILTER STRAINER

SCREEN, 50 MESH

1шт.

16

BN66859

HOSE

1" EPDM x 23.00"

1шт.

15b

84222934

SCREEN,80 Mesh Screen

80 MESH

1шт.

17

BN53668

COUPLING

1" Female, HS SHK

1шт.

18

BN2390261

REDUCER

Bushing - 1" x 1 /4"

1шт.

19

BN53734

ELBOW

90° 1/4" NPT x 9/16" JIC

1шт.

20

BN67393

HOSE

3/8" ID EDPM x 278"

1шт.

21

BN76084

HOSE CLAMP

Adj. #24, SS

2шт.

Выбрано товаров: 23