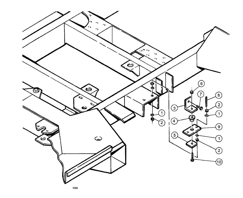
Запчасти Case IH SPX3185 (091) - ENGINE, HYDROSTAT SUPPORT MOUNTING PACKAGE, SPX3185 ONLY (10) - ENGINE

Схема запчастей Case IH SPX3185 - (091) - ENGINE, HYDROSTAT SUPPORT MOUNTING PACKAGE, SPX3185 ONLY (10) - ENGINE
1
2
1
2
2
4
1
10
5
6
8
3
9
7
FIT
1:1
100%

Артикул

Название

Примечание

Количество

1

87529240

WASHER,0.53" ID x 1.06" OD x 0.13" Thk

0.531 x 1.062 x 0.134 HTS DOR HDN

8шт.

2

BN50072

NUT

Hex, 1/2"-13, G5

8шт.

3

BN25882

MOUNT

Pump, 3" x 3" x 3/8" Angle x 3"

1шт.

4

BN29243

ISOLATOR

Rubber 1/2" Bore

1шт.

5

BN316870

WASHER

2.25 x 0.52 x 7 GA, 304 SS

1шт.

6

86992215

LOCK NUT,1/2"-13, GC

1шт.

7

50283

BOLT Hex, 1/2"-13 x 1 1/4", G5, Full Thd

5шт.

Qty 4, hydro to flywheel plate, see Fig. 029

1шт.

8

BN19874

ROD

Threaded, 1/2"-13 x 3 3/4", SS

2шт.

9

BN25883

MOUNT

1/2 x 3 FB x 6.00

1шт.

10

87339

BOLT,Hex, 1/2" - 13 x 3", Gr 5

1шт.

11

BN50166

WASHER

7/8 OD x 1/2 ID x 14 ga.

4шт.

Hydro to flywheel plate, see Fig. 029

1шт.

Выбрано товаров: 13