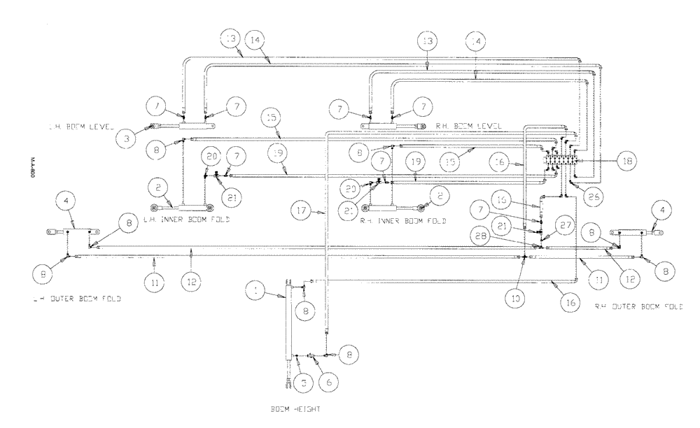
Запчасти Case IH SPX3185 (06-014) - HYDRAULIC PLUMBING - 75 BOOM Hydraulic Plumbing

Схема запчастей Case IH SPX3185 - (06-014) - HYDRAULIC PLUMBING - 75 BOOM Hydraulic Plumbing
7
19
14
2
28
21
15
13
8
8
16
12
4
20
19
7
21
16
5
8
3
13
20
27
14
7
7
1
15
12
17
18
8
8
4
7
11
7
8
21
6
16
26
2
10
8
11
8
7
FIT
1:1
100%

Артикул

Название

Примечание

Количество

1

NSS

NOT SOLD SEPARAT

HYD. CYLINDER boom height

1шт.

See Fig. 07-003

1шт.

2

NSS

NOT SOLD SEPARAT

HYD. CYLINDER inner boom fold

2шт.

See Fig. 07-004

1шт.

3

NSS

NOT SOLD SEPARAT

HYD. CYLINDER boom level

2шт.

See Fig. 07-008

1шт.

4

NSS

NOT SOLD SEPARAT

HYD. CYLINDER outer boom fold

2шт.

See Fig. 07-007

1шт.

5

BN51665

FITTING

NIPPLE, 3/8" close

1шт.

6

BN53681

HYDRAULIC VALVE

VALVE snubber

1шт.

7

BN22158

ADAPTER,3/8" NPT X 7/16"-20, 37 Degree

7шт.

8

BN21401

ELBOW,90 Degree 3/8" NPT x 7/16"-20 JIC

8шт.

10

BN21422

TEE

7/16-20 JIC

1шт.

11

BN53849

HOSE,0.25" ID x 305.00", SAE 100R1

Assembly

2шт.

12

BN53848

HOSE,0.25" ID x 295.00", SAE 100R1

Assembly

2шт.

13

BN54175

HOSE

1/4" x 182"

2шт.

14

BN54174

HOSE

1/4" ID x 174", 100R1

2шт.

15

BN310485

HOSE,0.25" ID x 137.00"

2шт.

16

BN54177

HOSE

1/4" ID x 96", 100R1

3шт.

17

BN54178

HOSE,6.35mm ID x 1676.4mm L, SAE 100R1

1/4" x 66"

1шт.

18

NSS

NOT SOLD SEPARAT

VALVE, 7 bank

1шт.

See Fig. 06-019

1шт.

19

BN310484

HOSE,0.25" ID x 120.00"

2шт.

20

BN51123

ADAPTER

90º, 3/8-18 NPT

2шт.

21

BN53856

HYDRAULIC VALVE

VALVE needle

3шт.

26

BN22160

ELBOW

90° 9/16-18 O-Ring X 7/16-20 JIC

14шт.

26a

BN98019

O-RING

#6

14шт.

27

BN51352

BUSHING

1/4-18 x 3/8-18 NPT

1шт.

28

BN53711

TEE

1/4 NPT x 7/16-20 JIC

1шт.

Выбрано товаров: 29