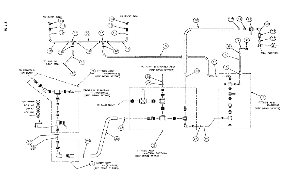
Запчасти Case IH SPX3200 (09-008) - LIQ. PLUMB, SUCTION - 750 SPHERICAL (78) - SPRAYING

Схема запчастей Case IH SPX3200 - (09-008) - LIQ. PLUMB, SUCTION - 750 SPHERICAL (78) - SPRAYING
19
1
25
13
31
10
10
25
9
20
21
7
15
8
24
24
27
10
10
22
10
2
30
17
14
17
11
33
23
14
10
3
32
12
16
10
12
5
6
26
4
18
29
6
24
25
23
13
28
11
FIT
1:1
100%

Артикул

Название

Примечание

Количество

1

NSS

NOT SOLD SEPARAT

FITTING ASSY., SUCT-SPHER.

1шт.

See Fig. 09-018

1шт.

2

NSS

NOT SOLD SEPARAT

FITNGS ASSY., JNK SUCT-SPHR.

1шт.

See Fig. 09-022

1шт.

3

NSS

NOT SOLD SEPARAT

FITTNGS ASSY., by-pass-SPHR.

1шт.

See Fig. 09-023

1шт.

4

NSS

NOT SOLD SEPARAT

ELBOW ASSY., by-pass

1шт.

See Fig. 09-034

1шт.

5

BN53748

HOSE,0.75" ID x 30.00"

1шт.

6

BN75978

HOSE CLAMP

SS, No. 12 adj., HS, .56-1.25

2шт.

7

BN73519

ELBOW

1/2" NPT x 3/4" Hose Barb

1шт.

8

BN53817

DRAIN VALVE

Plastic, 1/2" NPT

1шт.

9

BN310260

HOSE, 1.25" EPDM x 51"

1шт.

10

BN76084

HOSE CLAMP

Adj. #24, SS

10шт.

11

BN317579

TEE

hosebarb, 1.25"

2шт.

12

BN318803

HOSE,1.25" ID x 30.00"

EPDM

2шт.

13

BN73740

PIPE FITTING,1-1/2" Male Thread x 1-1/4" Hose Barb

BARB, 1-1/2 NPT x 1-1/4HB

2шт.

14

BN310467

ELBOW

1-1/2" NPT x 1-1/2" NPT, Poly, 45º

2шт.

15

BN317411

HOSE,1.25" ID x 45.00"

EPDM

1шт.

16

BN317591

HOSE,2.00" ID x 42.00"

2.0" EPDM x 42"

1шт.

17

BN76056

HOSE CLAMP

#36

2шт.

18

BN73781

FITTING,2" Male NPT x 2" Hose Barb, Poly

2" NPT x 2" Hose Barb

1шт.

19

BN73761

VALVE,2" NPT x 2" NPT

Ball, 2" Full Port

1шт.

20

BN73785

ELBOW

90º Street 2" Poly

1шт.

21

BN22901

DUST CAP,2" Cam Lever Dust Cap

2" Cam Lever

1шт.

22

BN317404

HOSE, 3 inch x 44

1шт.

23

BN2403395

CLAMP

T-Bolt Band 3.56"

2шт.

24

BN313773

CLAMP,2" Full Port

2" Flange

3шт.

25

BN313772

GASKET,2" Full Port, EPDM

2" Flange, EPDM

3шт.

26

BN317987

MOUNTING PARTS

KZ valve

1шт.

27

88011

BOLT,Hex, 3/8" - 16 x 1 1/4", Gr 5

2шт.

28

BN50759

LOCK NUT,3/8"-16, Nylon, Stainless

2шт.

29

BN55361

NUT,5/16"-18, Nylon, Stainless

2шт.

30

BN29909

HOSE

1.25" ID x 39" EPDM

1шт.

31

BN50145

WASHER

3/8, G5

4шт.

32

BN73790

LUBE NIPPLE

2" NPT x 6" poly

1шт.

33

BN304330

ADAPTER

2" Cam X 2" NPT

1шт.

Выбрано товаров: 37